Vuokrataan toimistotilat - Helsinki
Erottajankatu 15-17, 00130 Helsinki #10850424
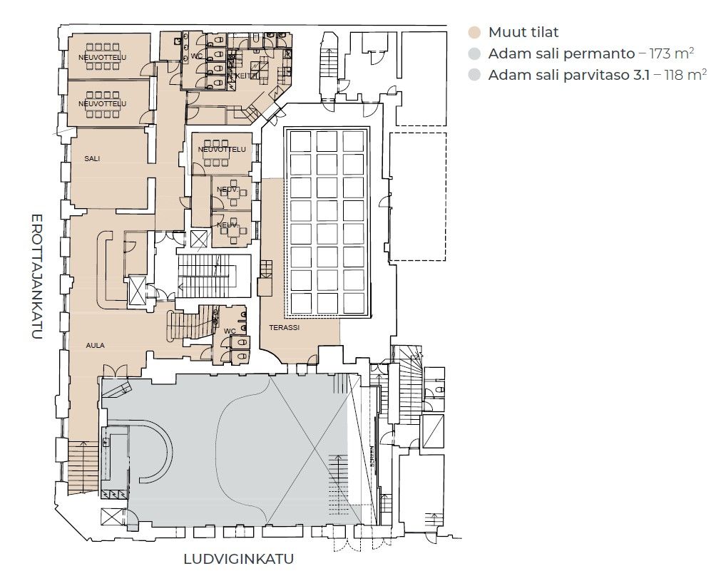
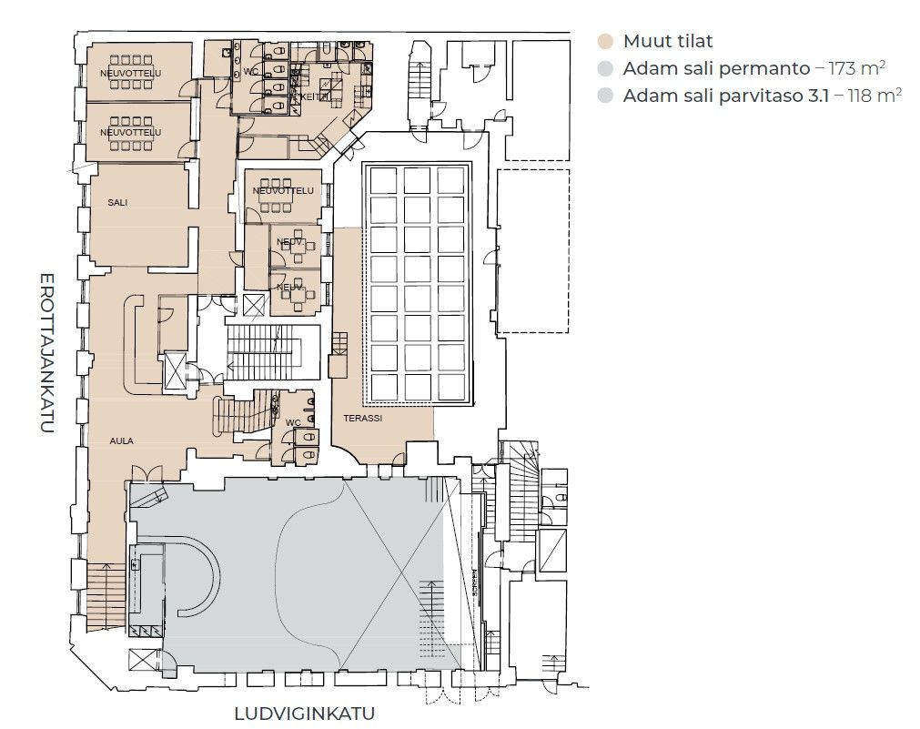
Vuokrattavana 2. kerroksen 557 m2 tila. Tilaan kuuluu Adams Sali, aula, neukkareita 5 kpl, catering keittiö, Adams Salin parvi. Tilat sopivat erilaisille palvelukonsepteille. Pääsisäänkäynti kiinteistön toimistokerroksiin. Kiinteistön aulapalvelut, neuvottelutilat ja iso tapahtuma- /lounge-tila.
Erottaja 15 on todellinen toimistokomistus Helsingin arvostetuimmassa osoitteessa. Rakennuksen ulkokuori henkii vanhan ajan glamouria ja klassista eleganssia, mutta sen tyylikkäät ja korkeat sisätilat ovat täydelliset nykyaikaiseen toimistotyöskentelyyn. Eri aikakausien kerrostumat näkyvät niin rakennuksen julkisivussa kuin sisätiloissa; joka kerros huokuu hohdokkuutta omalla ainutlaatuisella tavallaan.
