Vuokrataan toimistotilat - Helsinki
Eteläesplanadi 18, 00130 Helsinki #10850422
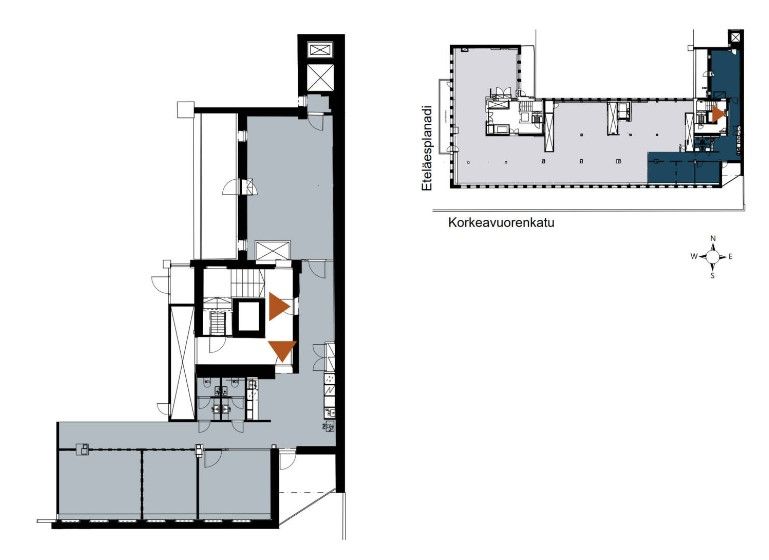
Vuokrattavissa pieni näppärä toimisto, sisäänkäynti Korkeavuorenkadulta. Kaksi omaa terassia joista upeat näkymät kaupungin kattojen ylle. Hissi kulkee kerrokseen 7, tila sijaitsee kerroksessa 8. Tila vapautuu sopimuksen mukaan.
Eteläesplanadi 18 on näyttävä, perinteikäs liike- ja toimistotalo. Arkkitehti J. S. Sirénin suunnittelema rakennus on valmistunut vuonna 1935. Sijainti Eteläesplanadilla on yksi Helsingin keskustan kauneimmista.
Kiinteistö on saneerattu vuonna 2017, nyt tarjolla korkeatasoista toimistotilaa upeilla näkymillä.
Eteläesplanadi 18:n toimitilat sijaitsevat keskustan monipuolisen palveluvalikoiman äärellä. Lounasravintoloita on lähistöllä runsaasti.
Kiinteistö sijaitsee kattavien julkisten liikenneyhteyksien varrella: rautatieasema, bussiterminaali sekä raitiovaunupysäkki sijaitsevat kaikki vain lyhyen kävelymatkan päässä.
