Vuokrataan toimistotilat - Espoo
Keilaranta 19 D, 02150 Espoo #10850409
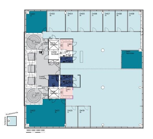
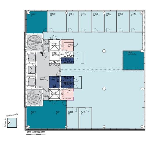
Vuokrattavana 4. kerroksen 526 m² kokoinen toimistotila, joka tarjoaa erinomaiset työskentelyolosuhteet näköalapaikalla meren äärellä. Valoisat ja avarat tilat, jossa palvelut ovat lähellä. Erinomaiset kulkuyhteydet.
HTC Keilaniemi on neljän talon kokonaisuus, joka sijaitsee näköalapaikalla Espoossa aivan meren rannassa. Tilat ovat laadukkaita, ja ikkunoista avautuu esteetön merinäköala. Kohde sijaitsee erinomaisella paikalla palveluiden lähellä ja hyvien liikenneyhteyksien varrella. Sijainniltaan paikka on erinomainen sekä imagon että toiminnallisuuden kannalta.
Kiinteistössä on vuokrattavana avo-, huone- ja yhdistelmäkonttoriksi muunneltavaa valoisaa tilaa. Kerrosala on 553 m2 ja se on jaettavissa kahteen 276 m2 -tilaan. HTC:n tilat räätälöidään yrityskohtaisesti tehokkaiksi ja työn tarpeita parhaiten tukeviksi. Työmukavuutta luovat talon nykyaikaiset talotekniset järjestelmät.
Kaikille yhteiset palvelut: Aulapalvelu, opastus, vartiointi, HTC-intra sekä kiinteistön hoito ja isännöinti. Lisäpalveluina saatavilla mm. ravintola-, catering, pesula, parturi-kampaamo, sijaisauto- ja pesulapalvelut, vihersisustus. Yhteiskäytössä 14 kpl erikokoisia neuvotteluhuoneita katutasossa. Työmukavuutta luovat talon nykyaikaiset talotekniset järjestelmät.
