Vuokrataan toimistotilat - Helsinki
Hämeentie 15 a, 00500 Helsinki #10850381
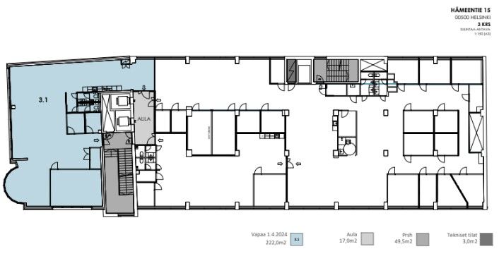
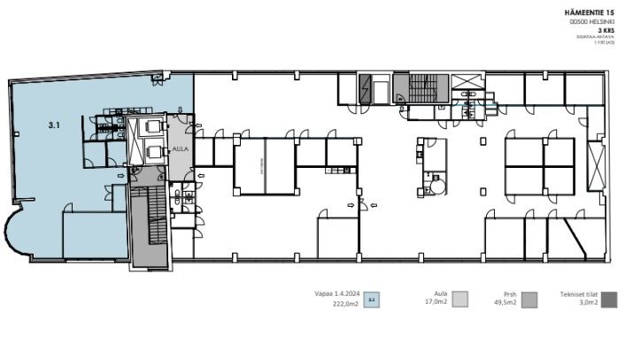
Vuokrattavana 3. kerroksen 222 m2 toimistotila, jossa on huoneita sekä tiimille että teamsille. Avaruutta tuo myös kaareva erkkeri. Talo sijaitsee erinomaisella paikalla Helsingin Sörnäisissä.
Hämeentie 15 on vuonna 1956 rakennettu kiinteistö, jota on sittemmin 1990-luvulla laajennettu. Historiallisesti kiinnostava rakennus sijaitsee Helsingin keskustan pohjoispuolella Sörnäisissä, jossa kysyntä näkyvillä paikoilla sijaitsevista ja hyvien liikenneyhteyksien varrella olevia toimitiloja kohtaan on korkea. Viime vuosina Helsingin kaupunki on toteuttanut mittavia uudistuksia Hämeentiellä parantaakseen julkisen ja kevyen liikenteen yhteyksiä ja samalla koko alueen houkuttelevuutta. Kehittyvällä Sörnäinen-Kalasatama-Vallila-alueella on kysyntää sekä moderneille, tehokkaille ja persoonallisille toimistotiloille.
Talossa on uniikkeja yksityiskohtia, kuten kaareva kulma ja ylemmissä kerroksissa iso kattoterassi.
