Vuokrataan muut tilat - Helsinki
Aleksanterinkatu 11, 00100 Helsinki #10850346
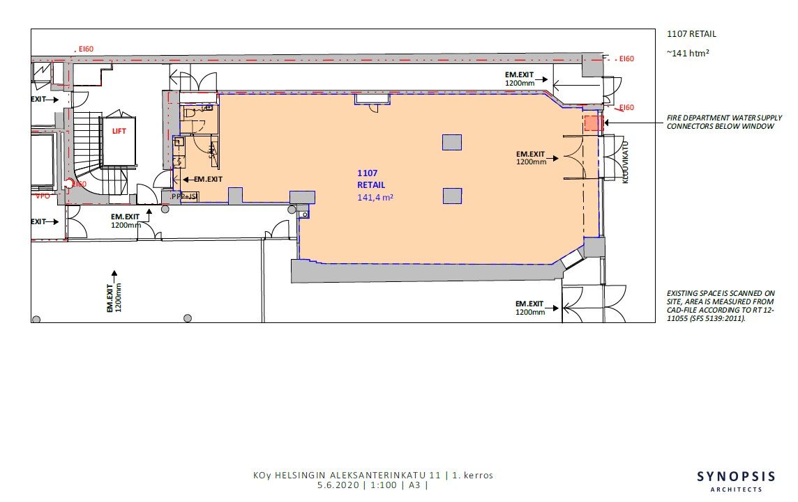
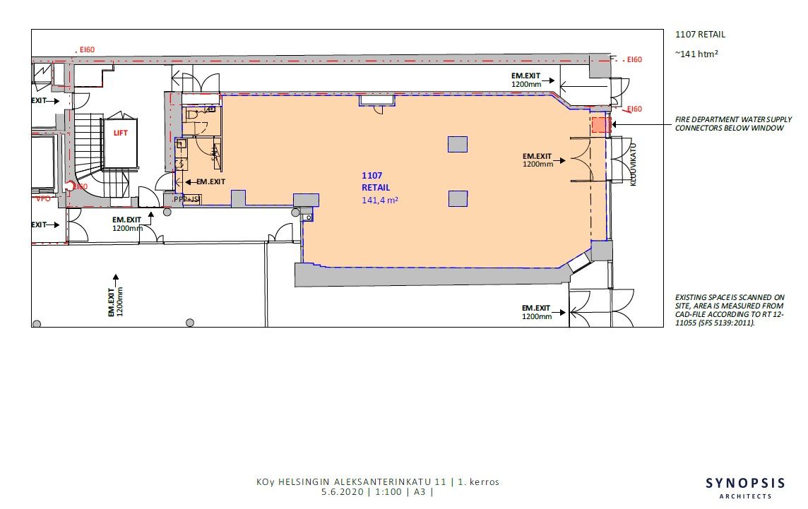
Nyt tarjolla vuokralle ainutlaatuinen 142 m² liiketila erinomaisella sijainnilla Helsingin ydinkeskustassa! Tämä katutason tila sijaitsee vuonna 2020 saneerauksesta valmistuneessa upeassa The First -rakennuksessa. Tähän liiketilaan sisäänkäynti Kluuvikadun puolelta.
Liiketila sopii täydellisesti esimerkiksi kahvilaksi, salaattibaariksi tai muuhun kevyempään liiketoimintaan, joka hyötyy vilkkaasta jalankulkuliikenteestä ja keskeisestä sijainnista. Tila ei sovellu ravintolaksi.
Liiketilojen vuokraus ja tiedustelut: C&W Retail Services, puh. 0108368400, retail.fi@cushwake.com.
The First on primepaikalla, Helsingin ydinkeskustassa, Aleksin ja Kluuvin kulmassa sijaitseva upea ja arvokas rakennus, joka tarjoaa huippuluokan toimitiloja. Tämä historiallinen toimistokiinteistö on Suomen vanhin betonirakenteinen liiketalo ja se on valmistunut täydellisestä saneerauksesta vuonna 2020. Sen toimitilat vastaavat täydellisesti nykytoimistovuokralaisen vaatimuksiin. Tilat ovat avaria, valoisia sekä erittäin muuntautumiskelpoisia.
Saneerauksen yhteydessä uudistettiin talon pääaula, joka avautuu suurin lasiseinin Kluuvikadun suuntaan. Sisäänkäynti on erityisen edustava. Rakennuksen palvelut ovat monipuoliset, kattosaunasta ensiluokkaisiin kokoustiloihin ja avaraan sisäpihaan, jossa voi vaikkapa nauttia lounasta. Talon katutasossa on rakennusta elävöittäviä liiketiloja ja ympäristössä runsaasti ravintoloita, myymälöitä sekä hotelleja. Talossa on pyöräparkki sekä suihku- ja pukuhuonetilat kellarikerroksessa. Toimistot sijaitsevat kerroksissa 2.-7. ja tilat ovat räätälöitävissä vuokralaisen toiveiden mukaan ja ne toimivat hyvin sekä huonetoimistona että tehokkaana avokonttorina.
