Vuokrataan toimistotilat - Espoo
Länsituuli 1, 02100 Espoo #10850340
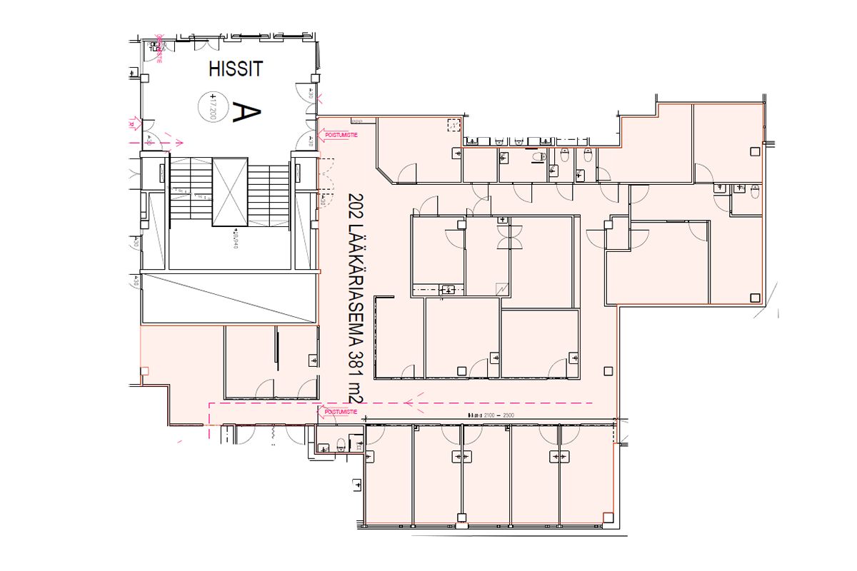
Vuokrataan siistiä, tilavaa ja monipuolista toimistotilaa kauppakeskus AINOAn vieressä Espoon Tapiolan keskustassa. Ollut aiemmin lääkäriaseman käytössä. Vuokrataan esim. väistötilaksi, max. 3/2026 saakka.
Länsikulma on terveys- ja hyvinvointipalveluiden keskittymä Tapiolassa. Länsikulma tarjoaa nykyaikaisia ja monipuolisia toimitiloja erinomaisella sijainnilla Tapiolan keskustan palveluiden äärellä, Kauppakeskus AINOAn vieressä. Talossa on siistiä toimistotilaa ja katutasossa toimitilaa, joka soveltuu esimerkiksi palveluliiketoimintaan. Kiinteistössä toimii mm. tilaussauna, parturi-kampaaja, hammaslääkäriasema ja kuntosali.
Bussit ja metro tuovat työntekijät ja asiakkaat aivan kiinteistön viereen ja kiinteistössä on mahdollista vuokrata hallipaikkoja Tapiolan Paikoitukselta.
