Vuokrataan liiketilat - Helsinki
Kluuvikatu 4, 00100 Helsinki #10850328
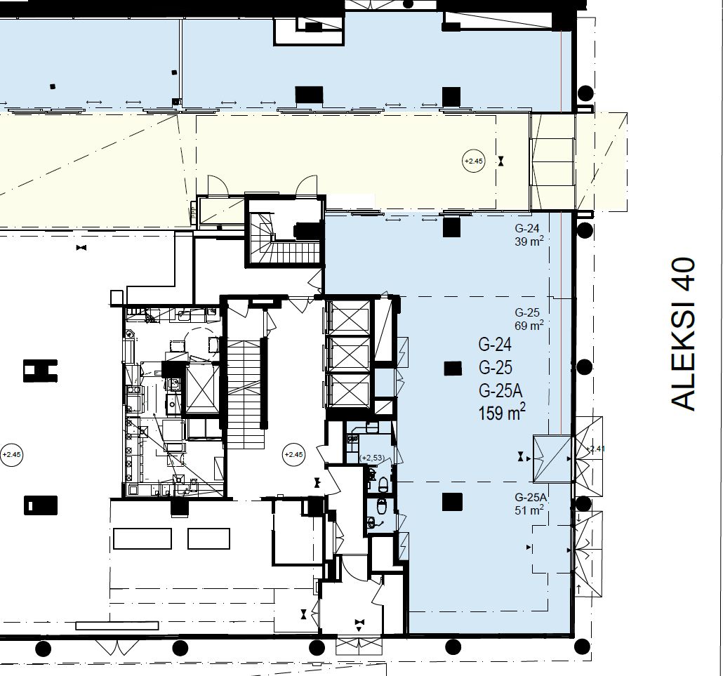
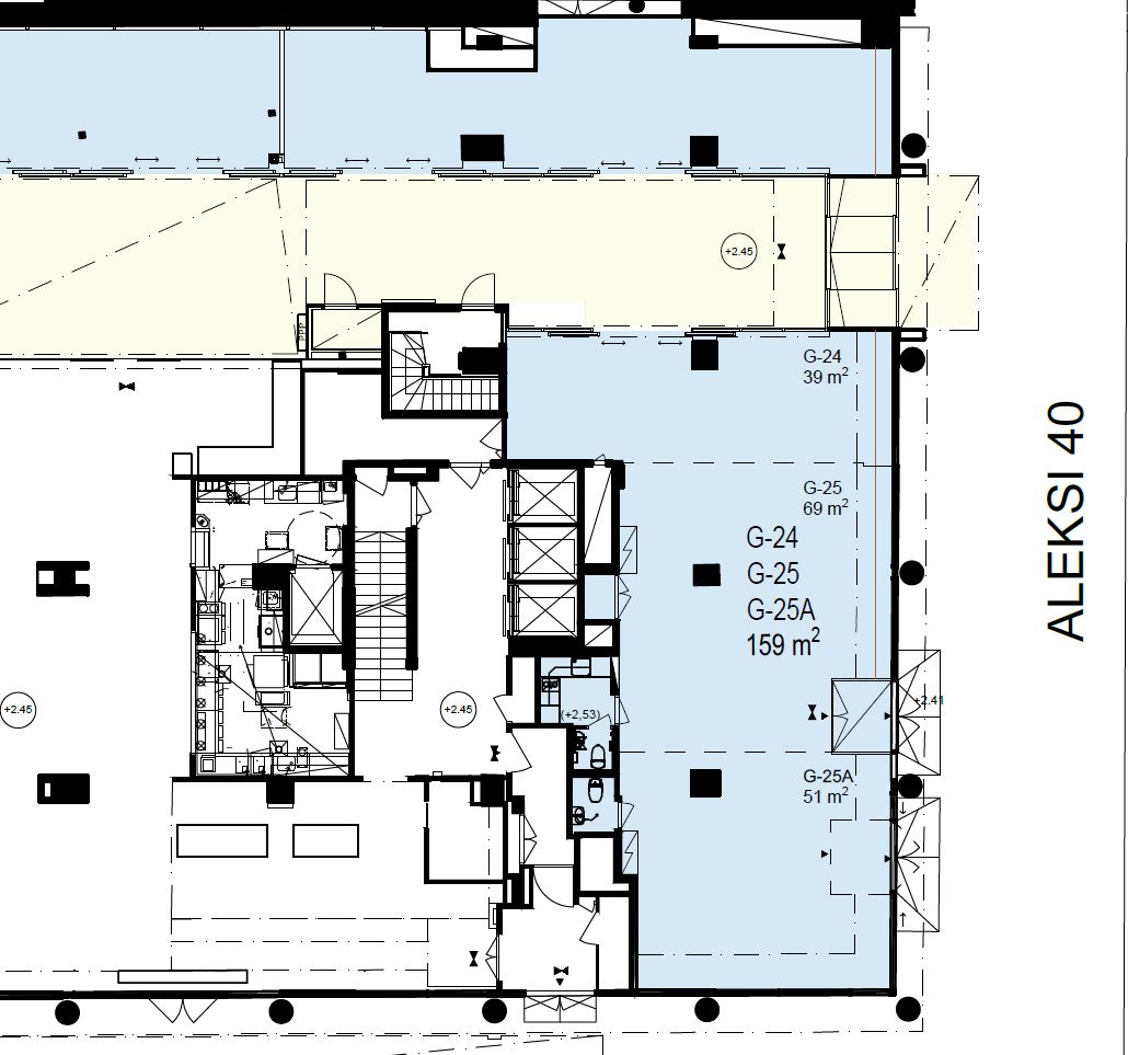
Katutason kulmaliiketila upealta paikalta Kluuvista. Liiketila sijaitsee keskeisellä paikalla, ja tarjoaa erinomaisen näkyvyyden ja helpon saavutettavuuden niin paikallisille kuin matkailijoillekin.
Liiketilojen vuokraus ja tiedustelut: C&W Retail Services, puh. 010 836 8418, retail.fi@cushwake.com.
Galleria Esplanad, korttelin kokoinen kauppakeskus Helsingin ydinkeskustassa, Kluuvin kaupunginosassa, Hotel Kämpin läheisyydessä.
Osoite
Kluuvikatu 4, 00100 Helsinki
Tilatyyppi
Liiketilaa
159 m2
Vapautuu
Kysy
Ota yhteyttä
Pyydä lisätietoa
