Vuokrataan toimistotilat - Espoo
Hatsinanpuisto 8 AB-talot, 02600 Espoo #10850307
Vuokrattavana muuttovalmis, uusi toimistotila. Täyden palvelun kiinteistössä on mm. oma ravintola, aulapalvelu ja pysäköintihalli. Leppävaaran palvelut ja kulkuyhteydet tekevät toimistoarjesta helppoa.
OOPS sijaitsee yhdellä pääkaupunkiseudun vetovoimaisimmista työpaikka-alueista Espoon Leppävaaran kupeessa. 2021 loppuvuodesta valmistuneet talot sijaitsevat Leppävaaran Hatsinanpuistossa Monikonpuron ja toimivien liikenneyhteyksien äärellä Kehä I:n, pääjunaradan ja Raide-Jokerin risteyksessä. Rakennuksella on BREEAM In-Use ympäristösertifikaatti arvosanalla Excellent.
Osoite
Hatsinanpuisto 8 AB-talot, 02600 Espoo
Tilatyyppi
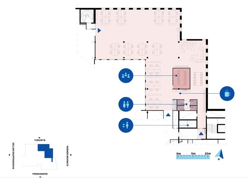
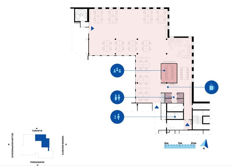
Toimistotilaa
521 m2
Kulkuyhteydet
OOPSista on erinomaiset liikenneyhteydet: Helsingin keskustaan pääsee nopeimmillaan junalla 15 minuutissa, autolla 20 minuutissa ja polkupyörällä 35 minuutissa. Raidejokerin pysäkki tulee tulevaisuudessa aivan viereen. Lentokentälle pääsee kätevästi junalla, bussilla tai autolla. Aluella on hankittavissa pysäköintioikeuksia, ja myös pyöräpysäköinti ja -sosiaalitilat ovat helposti käytettävissä.
Vapautuu
Kysy
Ota yhteyttä
Pyydä lisätietoa
