Vuokrataan toimistotilat - Helsinki
John Stenbergin ranta 2, 00530 Helsinki #10850304
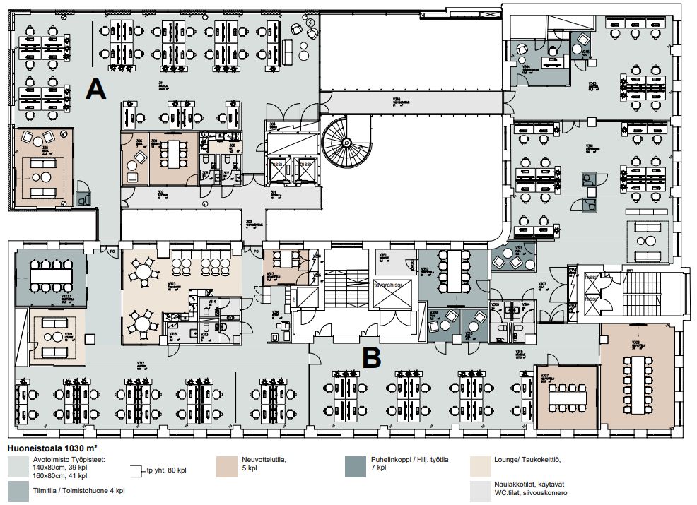
Vuokrattavana John Stenbergin rannan ja Siltasaarenkadun kulmassa valoisa 3. kerroksen 724 m2 toimistotila, josta hienot näkymät Pitkänsillan suuntaan. Tila on hyvässä kunnossa ja remontoitu edellisen kerran 2019. Vuokrauksessa huomioidaan tulevan käyttäjän tilatarpeet.
John Stenbergin ranta 2 – John S. on hieno punatiilinen talo aivan Pitkänsillan kupeessa, Helsingin Hakaniemessä. Talo toimi pitkään Wärtsilän pääkonttorina, ja nyt siitä on rakentunut upea monen käyttäjän toimistotalo. Kiinteistö koostuu kahdesta osasta. Vanhempi puoli on rakennettu vuonna 1938, ja se on Museoviraston suojelema. Kiinteistössä tehtiin 2019 yleisten tilojen remontti, jossa uudistettiin talon ilmettä ja henkeä.
John Stenbergin ranta 2 on jykevä toimistotalo, joka tarjoaa yrityksille modernit tilat erinomaisten liikenneyhteyksien varrelta. Lähellä on monipuoliset palvelut, ja talon omatkin palvelut ovat ensiluokkaiset. Aulapalvelun lisäksi talossa on oma henkilöstöravintola, vuokrattavia neuvottelutiloja sekä komeat edustustilat. Kiinteistössä on myös kuntosali, parkkihalli ja sisäpaikkoja pyörille.
