Vuokrataan toimistotilat - Helsinki
Hermannin Rantatie 8 ORIGINAL, 00580 Helsinki #10850291
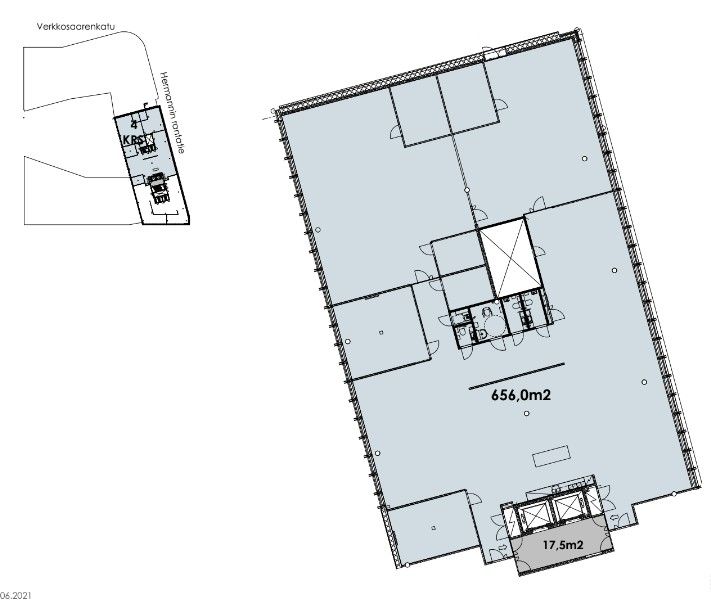
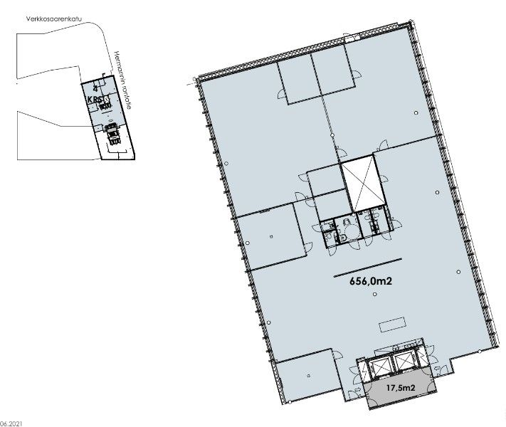
Valoisa avotoimistotila huoneilla. Tilassa myös LE-WC. Modernissa ja tyylikkäässä Rantatie Business Parkissa on erinomaiset palvelut ja toimitilat, jotka on suunniteltu ketterienkin organisaatioiden tarpeisiin mukautuviksi. Kohde sijaitsee erinomaisella paikalla Kalasataman alueella. Metro ja REDI ovat kävelymatkan päässä.
Vuokralaisten käytettävissä kiinteistön palvelut kuten aulapalvelu, lounasravintola, neuvotteluhuoneet ja klubiauto.
Rantatie on upea ja nykyaikainen toimistotalo Kalasatamassa.
Rantatie Business Park on moderni, linjakas ja tyylikäs talo Kalasataman parhaalla paikalla Hermannin rantatien varrella. Uudet, laadukkaat tilat ovat helposti muunneltavissa vastaamaan hyvinkin erilaisten asiakkaiden tarpeita aina pienyrittäjistä suuryrityksiin. Rantatie Business Park koostuu kolmesta eri osasta: Original, Kasvu ja Loikka. Yhteisten neuvottelutilojen punaisena lankana toimii merihenkisyys. Ravintola Lepuuttaja palvelee sekä talon asiakkaita että vierailevia ruokailijoita.
Vastuullisuuteen on kiinnitetty erityistä huomiota. Laajennusosat Kasvu ja Loikka ovat saaneet LEED® Gold -ympäristösertifikaatin osoituksena rakennusvaiheessa tehdyistä kestävistä päätöksistä mm. materiaalivalintojen, vedenkäytön ja tavoiteltavan energiatehokkuuden osalta. Laajennusosa Loikan katolla sijaitsevat aurinkopaneelit tuottavat vuosittain noin 7-8% Loikassa käytetystä sähköstä.
Kiinteistössä on käytössä uusiutuvilla luonnonvaroilla tuotettua, alkuperävarmennettua sähköä. Kiinteistön jäähdytykseen käytetään päästötöntä kaukokylmää, ja kiinteistön lämmitykseen käytettävästä energiasta 40% tuotetaan fossiilittomilla lähteillä. Tavoitteena on että vuodesta 2024 kiinteistön käytönaikainen energia on tuotettu kokonaan ei-fossiilisilla lähteillä.
Rantatie Business Parkin tavoitettavuus julkisilla liikennevälineillä on erinomainen, ja tuleva Kalasatamasta-Pasilaan raitiotiehanke toi raitiovaunuyhteyden kiinteistön välittömään läheisyyteen. Kannustamme ilmastoystävälliseen liikkumiseen, siksi kiinteistössä on edellytykset niin aktiivipyöräilijöille kuin sähköautoilijoillekin
