Vuokrataan toimistotilat - Helsinki
Lintulahdenkatu 10, 00500 Helsinki #10850287
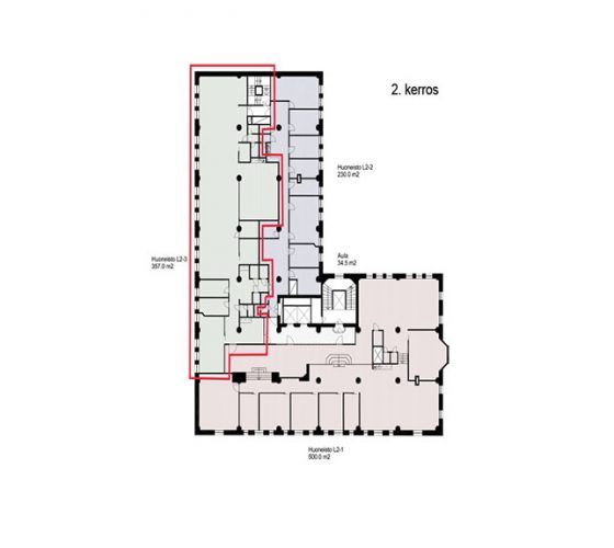
Vuokrattavana 2. kerroksen 357 m2 kerroksen toimistotila. Rakennushistoriallisesti arvokkaan rakennuksen tämän päivän vaatimuksia vastaaviksi saneeratuissa tiloissa on talon hengen mukaisesti persoonallista rosoisuutta. Tilat joustavat helposti käyttäjän tarpeita vastaaviksi.
Lintulahdenkulma on rakennushistoriallisesti arvokas kiinteistö ja Sörnäisten maamerkki. Yli satavuotias kiinteistö on muutettu toimistoksi peruskorjauksen yhteydessä 90-luvulla ja sitä on vaalittu rakkaudella sen jälkeen.
Lintulahdenkulmasta löytyy eri kokoisia persoonallisia tiloja pienistä huoneista isoihin kokonaisuuksiin saakka. Tilat on mahdollista remontoida käyttäjän työskentelytapoihin sopivaksi.
Lounasravintola tarjoaa päivittäin maittavan lounaan lisäksi cateringpalvelut ja voit ostaa vaikkapa paikan päällä paistettua leipää kotiin vietäväksi. Kiinteistössä on erikseen vuokrattavissa neuvotteluhuoneita sekä ylimmässä kerroksessa viihtyisä saunatila.
Kiinteistössä on aulapalvelu, koneellinen ilmanvaihto ja jäähdytys. Merinäköala.
