Vuokrataan toimistotilat - Helsinki
Mannerheimintie 105, 00280 Helsinki #10850278
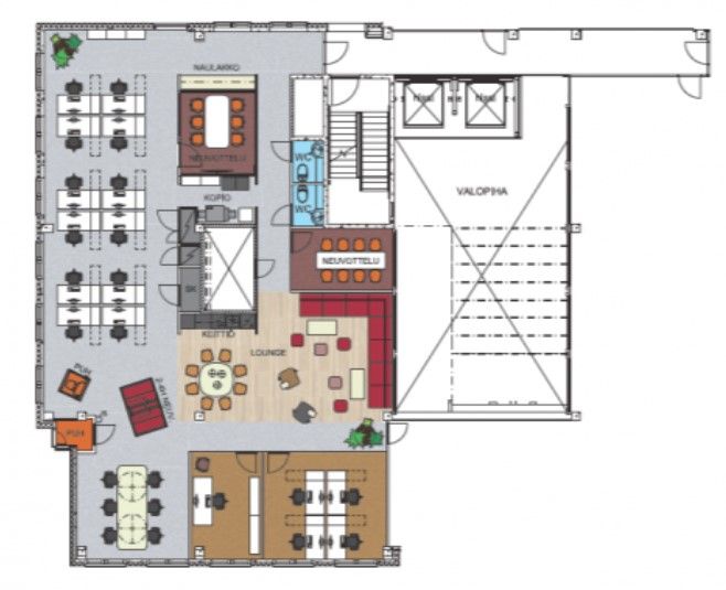
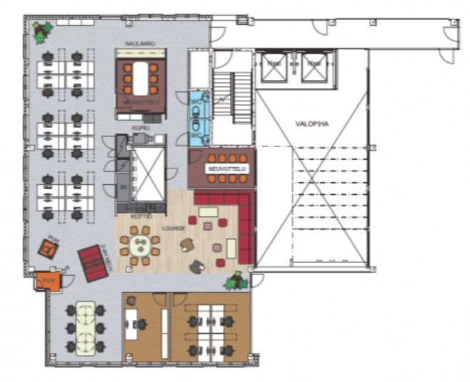
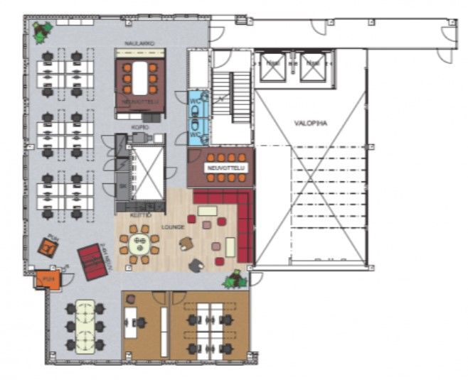
Muuttovalmis, remontoitu tila hyvien kulkuyhteyksien varrella. Vapaana kiinteistön 3. kerroksessa 279 m2 avara ja muuttovalmis toimitila. Tilat ovat valoisat sekä muokattavissa joustavasti käyttäjän tarpeiden mukaan.
Helsingin Mannerheimintie 105 on moderni toimistokiinteistö näkyvällä ja helposti saavutettavalla paikalla Mannerheimintien loppupäässä Ruskeasuolla. Kiinteistössä on hyvät palvelut käyttäjille, mm. aulapalvelu, lounasravintola, vuokrattavia neuvottelutiloja sekä hyvin varusteltu kuntosali ja sosiaalitilat. Lähistöllä päivittäistavarakauppa sekä muita lounasravintoloita. Työmatkaliikenne julkisilla tähän kohteeseen on varsin vaivatonta pääkaupunkiseudun asuinalueilta. Autolla Mansku 105:een on kätevää tulla, sillä se sijaitsee pääväylien risteyskohdassa. Autonkin saa helposti parkkiin talon alla sijaitsevaan pysäköintihalliin.
Mannerheimintie 105 on saavuttanut BREEAM In-Use (BRE Environmental Assessment Method) -ympäristösertifikaatin. BREEAM on johtava ja yksi laajimmin käytetyistä rakennusten ympäristönarviointijärjestelmistä.
