Vuokrataan toimistotilat - Helsinki
Sörnäisten Rantatie 29, Sörnäinen, 00500 Helsinki #10850259
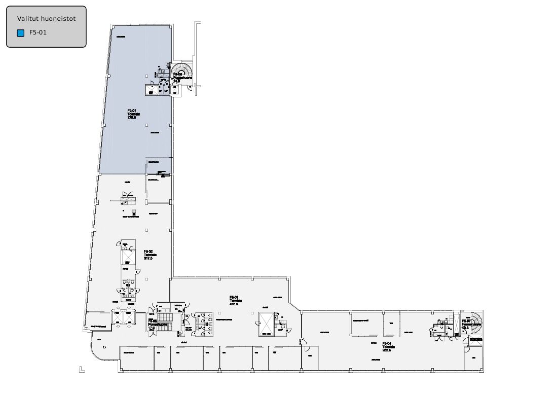
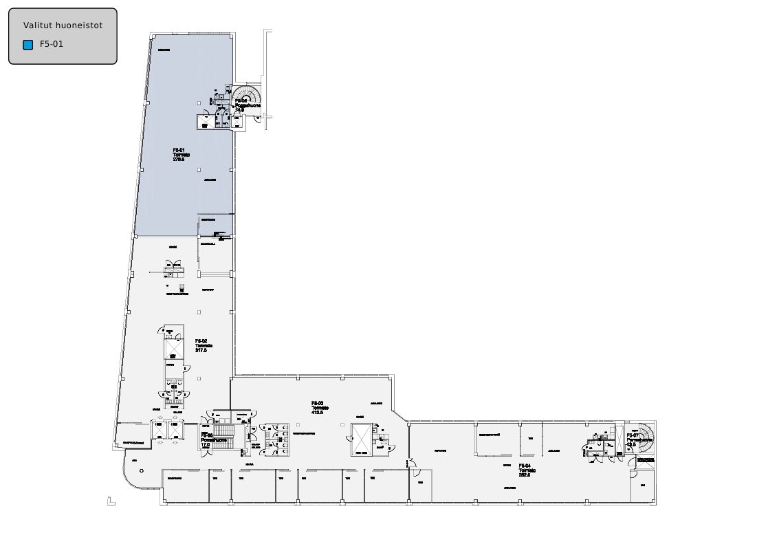
Kalasataman Kummeli - Toimisto 278,5 m²
Osoite
Sörnäisten Rantatie 29, 00500 Helsinki
Tilatyyppi
Toimistotilaa
279 m2
Pohjapiirros
Kiinteistö
Monitilatoimisto Kalasatamasta
Tarjolla 5. kerroksesta helposti muokattavissa oleva 278,5 m²:n toimistotila, jossa yhdistyvät valoisuus, tehokkuus ja joustavuus.
Toimisto on avotilaa, ja sen pohjaratkaisu mahdollistaa monipuolisen tilankäytön eri tarpeisiin. Tilassa on vaalea avokeittiö kulmauksessa, varusteltuna astianpesukoneella, jääkaapilla ja mikroaaltouunilla. Lisäksi tilassa on kaksi WC:tä. Pohjaratkaisu on helposti muokattavissa vuokralaisen tarpeiden mukaan, mikä mahdollistaa tilan räätälöinnin esimerkiksi tiimityöhön, asiakastapaamisiin tai rauhalliseen työskentelyyn. Tilassa on ilmastointi ja runsaasti luonnonvaloa suurista ikkunoista, mikä tekee työskentelystä miellyttävää ja tehokasta.
Kalasataman Kummeli – Täyden palvelun Business Park merellisessä ympäristössä
Kalasataman Kummeli on moderni ja industrial-henkinen toimitilakiinteistö, joka palvelee joustavasti erikokoisia yrityksiä. Vuonna 2015 täysin remontoitu kiinteistö tarjoaa monipuolisia tilaratkaisuja pienistä toimistohuoneista suuriin kokonaisuuksiin. Yrityksille, jotka arvostavat keskeistä sijaintia, kattavia palveluita ja merellistä tunnelmaa, Kalasataman Kummeli on erinomainen valinta.
Sijainti – Keskeinen ja saavutettava
Kalasataman Kummeli sijaitsee Sörnäisten, Kalasataman ja Suvilahden solmukohdassa, Sörnäisten rantatien ja Vilhonvuorenkadun kulmassa. Alueella on erinomaiset julkiset liikenneyhteydet: lähin metroasema on noin 400 metrin päässä, raitiovaunupysäkki 350 metrin päässä ja bussipysäkki vain 110 metrin päässä. Kiinteistössä on oma pysäköintihalli ja vieraspysäköinti viereisellä sisäpihalla, mikä takaa sujuvan saavutettavuuden myös autolla.
Palvelut – Kaikki tarvittava saman katon alla
Kalasataman Kummelissa vuokralaiset hyötyvät laajasta palveluvalikoimasta:
Aulapalvelu
Lounasravintola ja catering
Vuokrattavat neuvottelutilat
Autopesula
Pyöräparkki
Pukeutumis- ja pesutilat
Office Center 3. kerroksessa palvelee pienyrittäjiä ja mahdollistaa synergiaedun palveluiden hankinnassa.
Lähialueella sijaitsevat lisäksi ravintolat, kahvilat, kuntosali, kampaamo, ruokakauppa, hotelli, lääkäriasema, auditoriotilat, Teurastamon alue ja Kauppakeskus Redi – kaikki kävelyetäisyydellä.
Vastuullisuus – Kestävä ja moderni kiinteistö
Kalasataman Kummeli on remontoitu vastuullisesti ja energiatehokkaasti. Kiinteistössä hyödynnetään moderneja ratkaisuja, jotka tukevat kestävää kehitystä ja viihtyisää työympäristöä. Yrityksesi voi toimia tiloissa, jotka vastaavat nykypäivän ympäristövaatimuksiin ja tukevat vastuullista liiketoimintaa.
Ota yhteyttä
Kiinnostuitko? Ota yhteyttä ja tule tutustumaan!
Toimitilavälityspalvelumme on tilanhakijalle maksuton.
Tarjolla 5. kerroksesta helposti muokattavissa oleva 278,5 m²:n toimistotila, jossa yhdistyvät valoisuus, tehokkuus ja joustavuus.
Toimisto on avotilaa, ja sen pohjaratkaisu mahdollistaa monipuolisen tilankäytön eri tarpeisiin. Tilassa on vaalea avokeittiö kulmauksessa, varusteltuna astianpesukoneella, jääkaapilla ja mikroaaltouunilla. Lisäksi tilassa on kaksi WC:tä. Pohjaratkaisu on helposti muokattavissa vuokralaisen tarpeiden mukaan, mikä mahdollistaa tilan räätälöinnin esimerkiksi tiimityöhön, asiakastapaamisiin tai rauhalliseen työskentelyyn. Tilassa on ilmastointi ja runsaasti luonnonvaloa suurista ikkunoista, mikä tekee työskentelystä miellyttävää ja tehokasta.
Kalasataman Kummeli – Täyden palvelun Business Park merellisessä ympäristössä
Kalasataman Kummeli on moderni ja industrial-henkinen toimitilakiinteistö, joka palvelee joustavasti erikokoisia yrityksiä. Vuonna 2015 täysin remontoitu kiinteistö tarjoaa monipuolisia tilaratkaisuja pienistä toimistohuoneista suuriin kokonaisuuksiin. Yrityksille, jotka arvostavat keskeistä sijaintia, kattavia palveluita ja merellistä tunnelmaa, Kalasataman Kummeli on erinomainen valinta.
Sijainti – Keskeinen ja saavutettava
Kalasataman Kummeli sijaitsee Sörnäisten, Kalasataman ja Suvilahden solmukohdassa, Sörnäisten rantatien ja Vilhonvuorenkadun kulmassa. Alueella on erinomaiset julkiset liikenneyhteydet: lähin metroasema on noin 400 metrin päässä, raitiovaunupysäkki 350 metrin päässä ja bussipysäkki vain 110 metrin päässä. Kiinteistössä on oma pysäköintihalli ja vieraspysäköinti viereisellä sisäpihalla, mikä takaa sujuvan saavutettavuuden myös autolla.
Palvelut – Kaikki tarvittava saman katon alla
Kalasataman Kummelissa vuokralaiset hyötyvät laajasta palveluvalikoimasta:
Aulapalvelu
Lounasravintola ja catering
Vuokrattavat neuvottelutilat
Autopesula
Pyöräparkki
Pukeutumis- ja pesutilat
Office Center 3. kerroksessa palvelee pienyrittäjiä ja mahdollistaa synergiaedun palveluiden hankinnassa.
Lähialueella sijaitsevat lisäksi ravintolat, kahvilat, kuntosali, kampaamo, ruokakauppa, hotelli, lääkäriasema, auditoriotilat, Teurastamon alue ja Kauppakeskus Redi – kaikki kävelyetäisyydellä.
Vastuullisuus – Kestävä ja moderni kiinteistö
Kalasataman Kummeli on remontoitu vastuullisesti ja energiatehokkaasti. Kiinteistössä hyödynnetään moderneja ratkaisuja, jotka tukevat kestävää kehitystä ja viihtyisää työympäristöä. Yrityksesi voi toimia tiloissa, jotka vastaavat nykypäivän ympäristövaatimuksiin ja tukevat vastuullista liiketoimintaa.
Ota yhteyttä
Kiinnostuitko? Ota yhteyttä ja tule tutustumaan!
Toimitilavälityspalvelumme on tilanhakijalle maksuton.
Vapautuu
Kysy
Kerros
5
Ota yhteyttä
Logistila Oy
Kylätie 11-13, 00320 HELSINKI
Karoliina Turppo
Näytä puhelinnumero
050 345 3258
Pyydä lisätietoa
