Vuokrataan toimistotilat - Espoo
Ahti Business Park, Ahventie 4, Haukilahti, 02170 Espoo #10850240
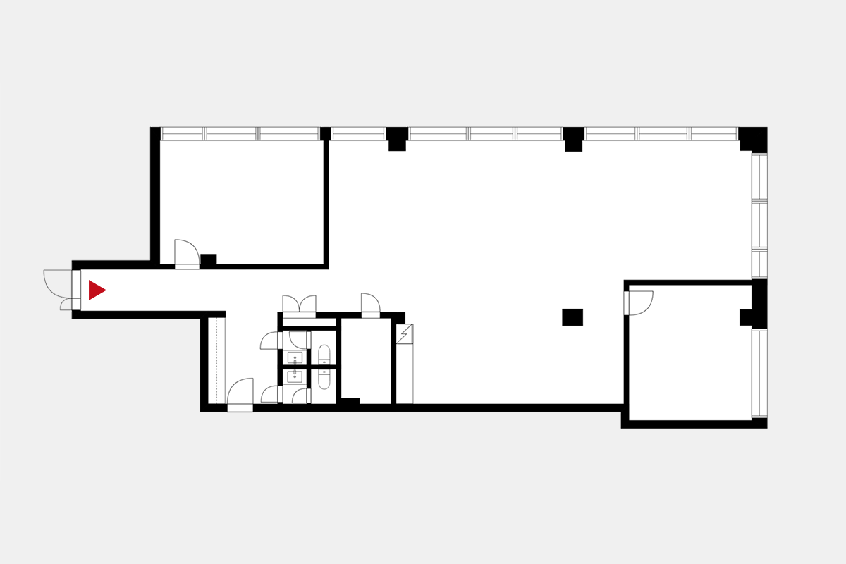
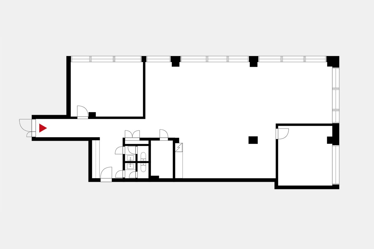
Joustava kolmannen kerroksen 184 m² toimisto näköalapaikalta, Länsiväylän varrelta
Osoite
Ahventie 4, 02170 Espoo
Tilatyyppi
Toimistotilaa
184 m2
Pohjapiirros
Kiinteistö
Tilasta on avarat näköalat ja se on muokattavissa vuokralaisen tarpeiden mukaan.
Lämminhenkisessä Ahti Business Parkissa yhdistyvät joustavat ja kustannustehokkaat toimitilat, virikkeellinen työympäristö sekä erinomainen sijainti. Vapaana oleva 184 m² tila sijaitsee Ahdin kolmannessa kerroksessa.
Ahti Business Park tarjoaa yrityksesi henkilöstölle persoonallisen työskentely-ympäristön. Kaikki toimistotilat ovat muokattavissa yrityksesi toimintaa tukeviksi.
Ahti Business Parkille on myönnetty Very Good -tason BREEAM In-Use -ympäristösertifikaatti. Kiinteistö suoriutui erityisen hyvin mm. julkisen ja kevyen liikenteen mahdollistamisessa sekä ympäristö- ja energiatehokkuutta tukevissa toimintamalleissa. Ahdille myönnetty sertifikaatti on osoitus hyvästä ympäristötyöstä, jota jatkuvasti kehitetään kiinteistön ylläpidossa.
Lämminhenkisessä Ahti Business Parkissa yhdistyvät joustavat ja kustannustehokkaat toimitilat, virikkeellinen työympäristö sekä erinomainen sijainti. Vapaana oleva 184 m² tila sijaitsee Ahdin kolmannessa kerroksessa.
Ahti Business Park tarjoaa yrityksesi henkilöstölle persoonallisen työskentely-ympäristön. Kaikki toimistotilat ovat muokattavissa yrityksesi toimintaa tukeviksi.
Ahti Business Parkille on myönnetty Very Good -tason BREEAM In-Use -ympäristösertifikaatti. Kiinteistö suoriutui erityisen hyvin mm. julkisen ja kevyen liikenteen mahdollistamisessa sekä ympäristö- ja energiatehokkuutta tukevissa toimintamalleissa. Ahdille myönnetty sertifikaatti on osoitus hyvästä ympäristötyöstä, jota jatkuvasti kehitetään kiinteistön ylläpidossa.
Sijainti
Ahti Business Park sijaitsee merellisessä Haukilahdessa, loistavalla näköalapaikalla, aivan Länsiväylän varrella. Ahtiin pääset kätevästi niin omalla autolla kuin julkisilla kulkuvälineilläkin. Lähin linja-autopysäkki sijaitsee aivan toimistotalon vieressä ja Niittykummun metroasemalle on vain kymmenen minuutin kävelymatka. Helsingin keskustaan ajat Länsiväylää pitkin noin 15 minuutissa. Pysäköintitilaa Ahdissa on runsaasti niin omalla autolla kulkeville kuin yritysten asiakkaillekin. Työmatkapyöräilijät on huomioitu laadukkaalla pyöräparkilla ja pukuhuonetiloilla.
Palvelut
Ahti Business Parkissa yritysten on helppo viihtyä. Tarjolla on erilaisia liiketoimintaa tukevia palveluita kuten esimerkiksi asiantunteva aulapalvelu, neuvottelutiloja, viihtyisä lounasravintola sekä reilusti pysäköintitilaa. Henkilöstön hyvinvointiin on kiinnitetty huomiota muun muassa työmatkaliikuntaa tukevin sosiaalitiloin. Lähistöllä sijaitsevien Kauppakeskus Niityn sekä Iso Omenan ansiosta alueen palvelutarjonta on todella laaja ja monipuolinen.
Kulkuyhteydet
Bussipysäkki 100 m, Juna-asema 8,6 km, Lentoasema 27,6 km
Vapautuu
Heti
Kerros
3
Energiatehokkuusluokka
Ei lain edellyttämää energiatodistusta
Näkyvällä paikalla
Hissi
Ota yhteyttä
ScanReal Oy LKV
Opus Business Park
Hitsaajankatu 24
00810 Helsinki
info@scanreal.fi
Puh:
Näytä puhelinnumero
020 730 8830
Sopivat toimitilat yhdellä otolla!
Kartoitamme toimitilatarpeesi ja etsimme yrityksellesi parhaiten sopivat vapaat toimitilat. Koska vuokranantajat maksavat palvelumme, on tämä yrityksellesi veloituksetonta.
OTA YHTEYTTÄ - SOVI NÄYTTÖ!
Kaikki kohteemme eivät ole netissä, kerro tilatarpeesi niin kartoitamme vaihtoehdot.
Palvelumme on tilanhakijalle ilmainen
Pyydä lisätietoa
