Vuokrataan toimistotilat, liiketilat, varastotilat, työtilat, autotalli/-hallitilat - Ii
Varasto/harrastetilaa!, Kauppatie 26, 91100 Ii #10850224
VUOKRATAAN UUTTA Varasto/harrastetilaa!
Näkyvä ja monikäyttöinen kohde 4-tien varressa
Osoite
Kauppatie 26, 91100 Ii
Tilatyyppi
Toimistotilaa
41 m2
Liiketilaa
41 m2
Varastotilaa
41 m2
Työtilaa
41 m2
Autotalli/-hallitilaa
41 m2
Yhteensä
41 m2
Vuokra
13€/m2 Alv0%
Sijainti
Kohde sijaitsee erinomaisella paikalla vilkkaan 4-tien varrella
Ympäristö
Tarjoaa poikkeuksellisen näkyvyyden ja helpon löydettävyyden niin asiakkaille kuin yhteistyökumppaneille.
Pysäköinti
Paikoitus oven edessä.
Lisätietoa saneerauksista
Tilat ovat monipuolisesti muunneltavissa varastoksi, autohalliksi, yritystoimintaan tai harrastekäyttöön. Kohde soveltuu erinomaisesti myös sijoituskäyttöön.
Yritysostajille merkittävä ALV-etu tekee hankinnasta taloudellisesti houkuttelevan.
Tilat ovat saatavilla ostettavaksi tai vuokrattavaksi – valitse juuri omaan tarpeeseesi sopiva ratkaisu.
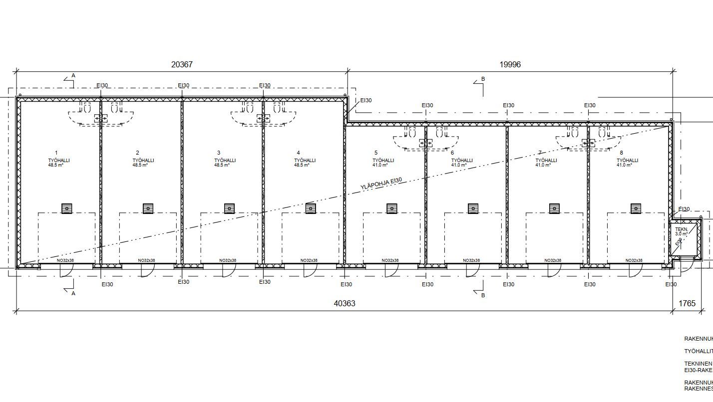
Koot 41-48.5 m2 (Tilat yhdistettävissä 90m2 saakka)
41m2, 4kpl
48,5m2, 4kpl
Yritysostajille merkittävä ALV-etu tekee hankinnasta taloudellisesti houkuttelevan.
Tilat ovat saatavilla ostettavaksi tai vuokrattavaksi – valitse juuri omaan tarpeeseesi sopiva ratkaisu.
Koot 41-48.5 m2 (Tilat yhdistettävissä 90m2 saakka)
41m2, 4kpl
48,5m2, 4kpl
Vapautuu
7/2026
Rakennusvuosi
2026
Kerros
1
Ota yhteyttä
Pyydä lisätietoa