Vuokrataan toimistotilat - Helsinki
Valimo 1, Valimotie 1, Pitäjänmäki, 00380 Helsinki #10850212
Modernisoitua 1090 m² toimistotilaa Pitäjänmäessä.
Osoite
Valimotie 1, 00380 Helsinki
Tilatyyppi
Toimistotilaa
1090,5 m2
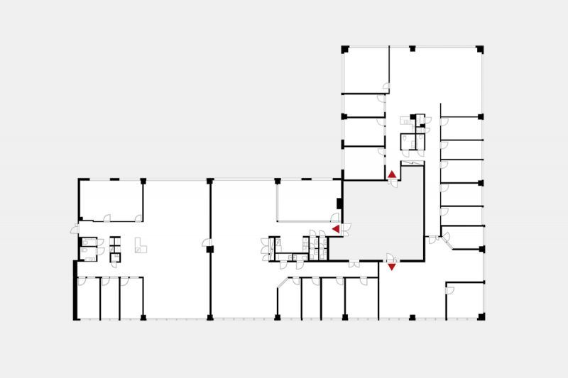
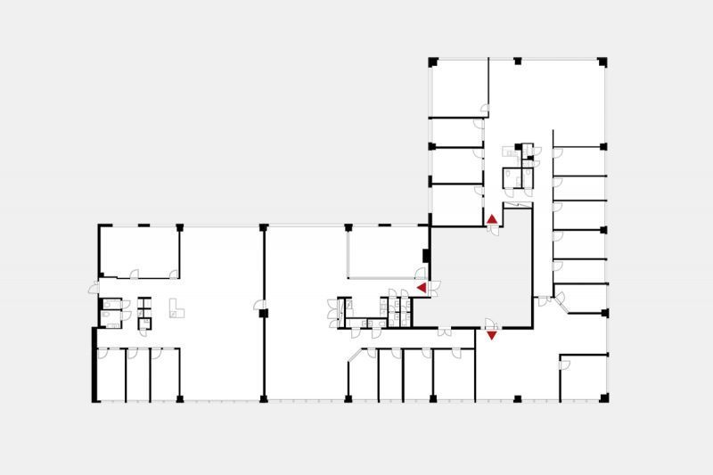
Pohjapiirros
Kiinteistö
2. kerroksen tilava kokonaisuus joka on myös jaettavissa pienempiin kokonaisuuksiin 3-4 käyttäjälle. Tähän tilaan on myös mahdollista toteuttaa toiminnallisia ja visuaalisia muutostöitä tulevan asiakkaan toiveiden mukaan.
Tulevalla vuokralaisella on vielä mahdollisuus vaikuttaa lopulliseen tilaratkaisuun sekä pintamateriaaleihin.
Valimo 1 tarjoaa remontoitua viihtyisää jäähdytettyä toimistotilaa Pitäjänmäellä, joka on pääkaupunkiseudun suurimpia toimistokeskittymiä yhteensä noin 19 000 työpaikallaan.
Valimotielle on helppo saapua: parkkitilaa on runsaasti, vierailijat pysäköivät veloituksetta ja Raide-jokeri tuo sinut aivan pääoven eteen.
Ensimmäisen kerroksen lounasravintola tarjoaa henkilöstölle maittavaa ruokaa. Alueella on myös laaja tarjonta toimistotyöntekijöille suunnattuja palveluja kuten useampi kuntosali sekä Talin alue golfkenttineen ja lenkkipolkuineen ovat aivan kulman takana.
Modernisoitu toimistokiinteistö tarjoaa muuntojoustavia ja tehokkaita tiloja, jotka kunnostetaan käyttäjän tarpeiden mukaan viihtyisiksi ja toimiviksi.
Talo tarjoaa 160 pysäköintiruutua, joista 140 löytyy lämpimästä autohallista. Vierailijat voivat jättää autonsa parkkiin ilmaiseksi talon edustalle.
Tavarahissien ansiosta tilat soveltuvat hyvin myös vaativammalle käyttäjälle. Lastauslaituri löytyy kiinteistön sisäpihalta.
Kellarikerroksesta löytyy pieniä varastotiloja, sekä sosiaalitilat naisille ja miehille.
Ilmoituksen kuvat ovat yleiskuvia kiinteistön eri tiloista.
Tulevalla vuokralaisella on vielä mahdollisuus vaikuttaa lopulliseen tilaratkaisuun sekä pintamateriaaleihin.
Valimo 1 tarjoaa remontoitua viihtyisää jäähdytettyä toimistotilaa Pitäjänmäellä, joka on pääkaupunkiseudun suurimpia toimistokeskittymiä yhteensä noin 19 000 työpaikallaan.
Valimotielle on helppo saapua: parkkitilaa on runsaasti, vierailijat pysäköivät veloituksetta ja Raide-jokeri tuo sinut aivan pääoven eteen.
Ensimmäisen kerroksen lounasravintola tarjoaa henkilöstölle maittavaa ruokaa. Alueella on myös laaja tarjonta toimistotyöntekijöille suunnattuja palveluja kuten useampi kuntosali sekä Talin alue golfkenttineen ja lenkkipolkuineen ovat aivan kulman takana.
Modernisoitu toimistokiinteistö tarjoaa muuntojoustavia ja tehokkaita tiloja, jotka kunnostetaan käyttäjän tarpeiden mukaan viihtyisiksi ja toimiviksi.
Talo tarjoaa 160 pysäköintiruutua, joista 140 löytyy lämpimästä autohallista. Vierailijat voivat jättää autonsa parkkiin ilmaiseksi talon edustalle.
Tavarahissien ansiosta tilat soveltuvat hyvin myös vaativammalle käyttäjälle. Lastauslaituri löytyy kiinteistön sisäpihalta.
Kellarikerroksesta löytyy pieniä varastotiloja, sekä sosiaalitilat naisille ja miehille.
Ilmoituksen kuvat ovat yleiskuvia kiinteistön eri tiloista.
Vapautuu
Heti
Saneerausvuosi
2010
Kerros
2 / 7
Energiatehokkuusluokka
D
Hissi
Lastauslaituri
Ota yhteyttä
ScanReal Oy LKV
Opus Business Park
Hitsaajankatu 24
00810 Helsinki
info@scanreal.fi
Puh:
Näytä puhelinnumero
020 730 8830
Sopivat toimitilat yhdellä otolla!
Kartoitamme toimitilatarpeesi ja etsimme yrityksellesi parhaiten sopivat vapaat toimitilat. Koska vuokranantajat maksavat palvelumme, on tämä yrityksellesi veloituksetonta.
OTA YHTEYTTÄ - SOVI NÄYTTÖ!
Kaikki kohteemme eivät ole netissä, kerro tilatarpeesi niin kartoitamme vaihtoehdot.
Palvelumme on tilanhakijalle ilmainen
Pyydä lisätietoa
