Vuokrataan toimistotilat - Tampere
Hatanpään Valtatie 18, Keskusta, 33100 Tampere #10850165
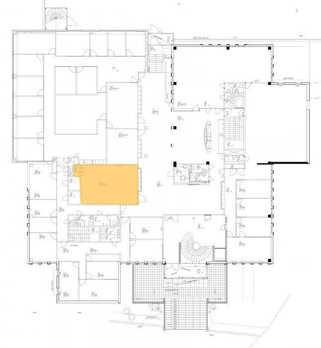
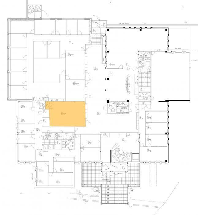
Vuokrattavana erinomaisella sijainnilla Tampereen keskustassa kompakti 42 m² toimistotila 1.kerroksesta!
Keskeinen sijainti keskustassa mahdollistaa sujuvat kulkuyhteydet ja rautatieasemalle on vain noin 800 metrin kävelymatka.
Sopii hyvin monenlaiseen toimistokäyttöön.
Keskustan monipuoliset palvelut ovat käden ulottuvilla.
Erinomaiset liikenneyhteydet – lyhyt matka Ratinan ja Koskikeskuksen ostoskeskuksiin sekä kaupungin muihin palveluihin.
Lisää kohteita www.rhg.fi
Osoite
Hatanpään Valtatie 18, 33100 Tampere
Tilatyyppi
Toimistotilaa
42 m2
Vapautuu
Kysy
Huoneiden lukumäärä
1
Energiatehokkuusluokka
Ei lain edellyttämää energiatodistusta
Ota yhteyttä
RHG Real Estate
Hämeenkatu 2 B20, 20500 Turku
Mikko Wallgren
Toimitilavälittäjä
Näytä puhelinnumero
045 6102 752
Pyydä lisätietoa
