Vuokrataan toimistotilat - Helsinki
Salomonkatu 17, Kamppi, 00100 Helsinki #10850000
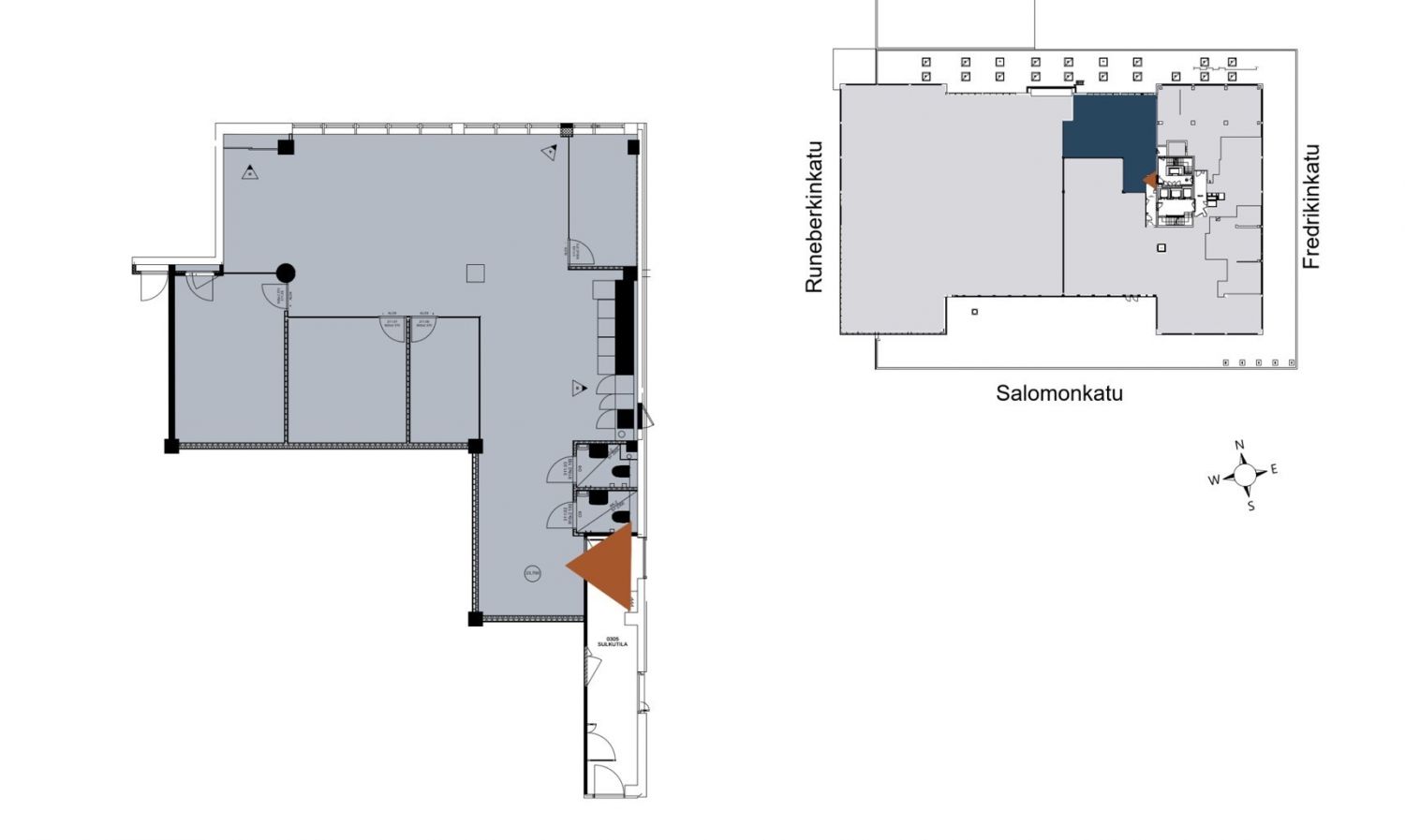
Vuokrataan 162m2 toimitila perinteikkäässä Autotalossa, Helsingin Kampissa. Tämä moderni toimitila on remontoitu vuonna 2016. Sijainti Kampissa takaa erinomaiset liikenneyhteydet erityisesti julkisilla kulkuvälineillä. Autotalon alakerrassa on kattava ravintolamaailma ja Kampin monipuoliset palvelut sijaitsevat kävelyetäisyydellä.
Osoite
Salomonkatu 17, 00100 Helsinki
Tilatyyppi
Toimistotilaa
162 m2
Vapautuu
Kysy
Huoneiden lukumäärä
1
Energiatehokkuusluokka
Ei lain edellyttämää energiatodistusta
Ota yhteyttä
RHG Real Estate
Hämeenkatu 2 B20, 20500 Turku
Jouko Raitanen
Näytä puhelinnumero
050 469 5444
Pyydä lisätietoa
