Vuokrataan tuotantotilat - Helsinki
Hyttitie 8, Tattarisuo, 00700 Helsinki #10849992
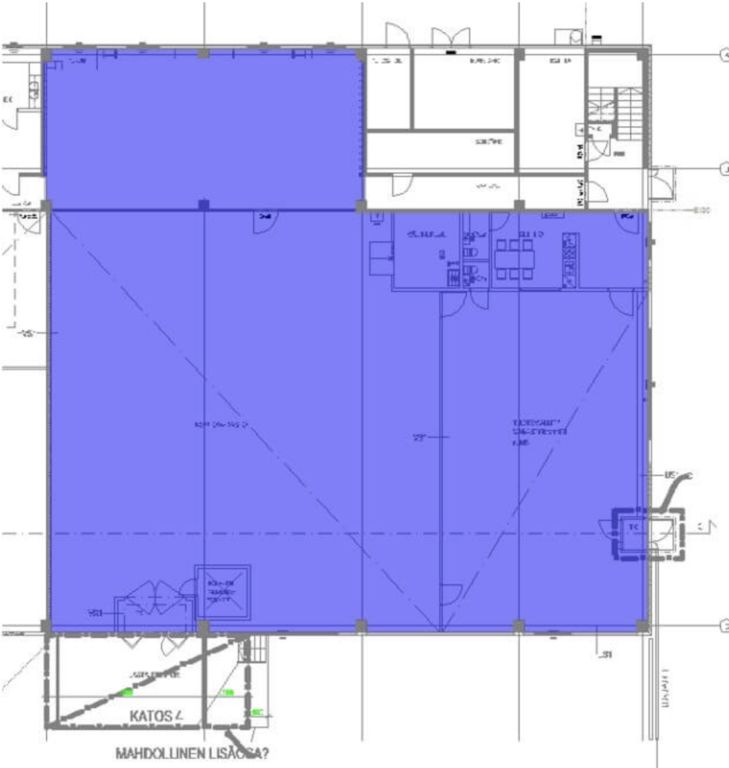
Siistiä varasto-/tuotanto-/myymälätilaa Tattarisuolla.
Tämä monikäyttöinen 632 m² tila sijaitsee kiinteistön katutasossa. Vapautuminen kesällä 2026, tila toimii tällä hetkellä siivousvälineliikkeen noutovarastona.
Hyttitie 8 on tuotanto- ja varastokiinteistö hyvien kulkuyhteyksien varrella. Lyhyen ajomatkan päässä Malmin ja Itäkeskuksen palvelut.
Kysy lisää numerosta 044 723 4700 tai info@bref.fi. Palvelumme on tilanhakjoille ilmainen.
Osoite
Hyttitie 8, 00700 Helsinki
Tilatyyppi
Tuotantotilaa
632 m2
Palvelut
Autopaikkoja kiinteistön edessä ja autohallissa. Lähellä useita lounaspaikkoja.
Vapautuu
Kysy
Kerros
1
Energiatehokkuusluokka
Ei lain edellyttämää energiatodistusta
Ota yhteyttä
Bureau Real Estate Finland Oy
Lars Sonckin kaari 16, 02600 Espoo
Näytä puhelinnumero
0447234700
Bureau Real Estate Finland Oy
https://www.bref.fiPyydä lisätietoa
