Kohteesta ei kuvia
Vuokrataan varastotilat - Pirkkala
Jasperintie 310, Vähä-Vaitti, 33960 Pirkkala #10849985
Myymälä-/varasto-/tuotantotilaa näkyvältä paikalta Pirkkalasta.
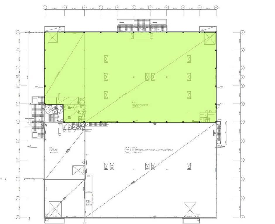
Tämä 2135 m² tilakokonaisuus jakautuu kiinteistön 1. ja 2. kerrokseen. Tila soveltuu hyvin esim. teknisen erikoiskaupan käyttöön. Siistiä uudehkoa tilaa. Tilan korkeus 7 m. Vapautuminen syksyllä 2026.
Jasperintie 310 sijaitsee lähellä valtatie 3:sta. Alueen palvelut ovat helposti saavutettavissa.
Kysy lisää numerosta 044 723 4700 tai info@bref.fi. Palvelumme on tilanhakijoille ilmainen.
Osoite
Jasperintie 310, 33960 Pirkkala
Tilatyyppi
Varastotilaa
2135 m2
Palvelut
Pirkkalan päivittäispalvelut lyhyen matkan päässä.
Vapautuu
Kysy
Kerros
1
Energiatehokkuusluokka
Ei lain edellyttämää energiatodistusta
Ota yhteyttä
Bureau Real Estate Finland Oy
Lars Sonckin kaari 16, 02600 Espoo
Näytä puhelinnumero
0447234700
Bureau Real Estate Finland Oy
https://www.bref.fiPyydä lisätietoa
