Vuokrataan varastotilat - Helsinki
Säynäskuja 4, Viikki, 00560 Helsinki #10849928
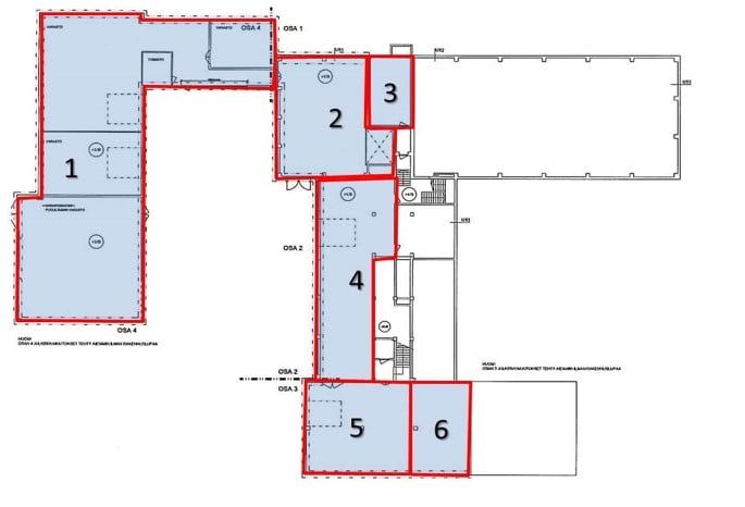
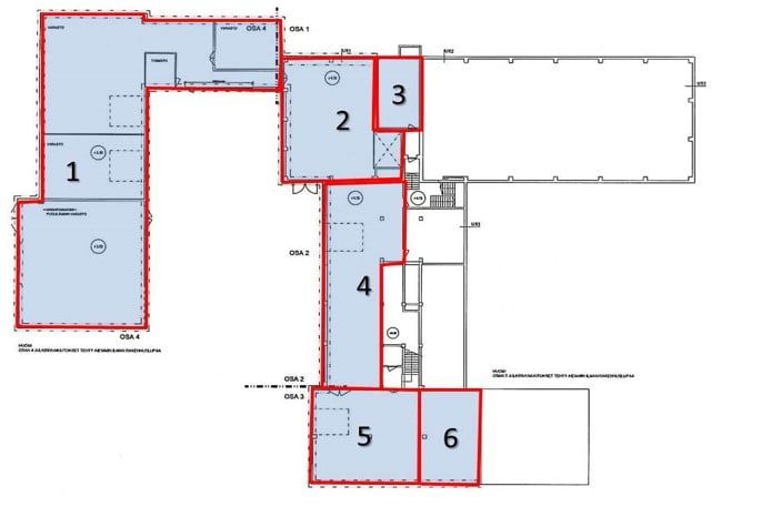
Säynäskuja 4 on teollisuushalli, joka tarjoaa monipuolisia ja muunneltavia toimitiloja noin 100 m2 aina 500 neliön kokonaisuuksiin. Säynäskuja 4 sijaitsee Helsingin Viikin yritys- ja toimitila-alueella, joka yhdistää hyvän saavutettavuuden ja monipuolisen toimintaympäristön. Kohde on helposti saavutettavissa sekä omalla autolla että julkisilla kulkuvälineillä, ja Lahdenväylä sekä Kehä I ovat nopeasti tavoitettavissa. Viikin ja Kumpulan alueilla kulkee useita bussilinjoja, jotka tarjoavat sujuvat yhteydet eri puolille pääkaupunkiseutua. Lähiympäristöstä löytyy lounasravintoloita, päivittäistavarakauppoja ja muita arkea tukevia palveluja, ja Viikin monipuoliset palvelut ovat kävelyetäisyydellä.
Tilasta löytyy kaksi nosto-ovea ja toimistoparvi.
Me Croisettella autamme teitä löytämään teille parhaat tilat! Olemme puolueettomia asiantuntijoita ja tunnemme toimitilamarkkinat, talot sekä tilat vankalla kokemuksella. Meillä on välityksessä kaikki toimitilat ja tiedämme niiden alustavat vuokratasot.
Tehtävämme on tehdä toimitilahaustanne onnistunutta ja helppoa. Saamme palkkiomme kiinteistönomistajalta, joten sinulle palvelumme on täysin maksuton. Jos kiinnostuit, ota yhteyttä!
Croisette Real Estate Partner
Erottajankatu 5 A 6, 00130 Helsinki
Näytä puhelinnumero
+358 400 585 857
Croisette Vuokraus
Näytä puhelinnumero
+358400585857
