Vuokrataan liiketilat, tuotantotilat, varastotilat - Pirkkala
Jasperintie 310 B, 33960 Pirkkala #10849887
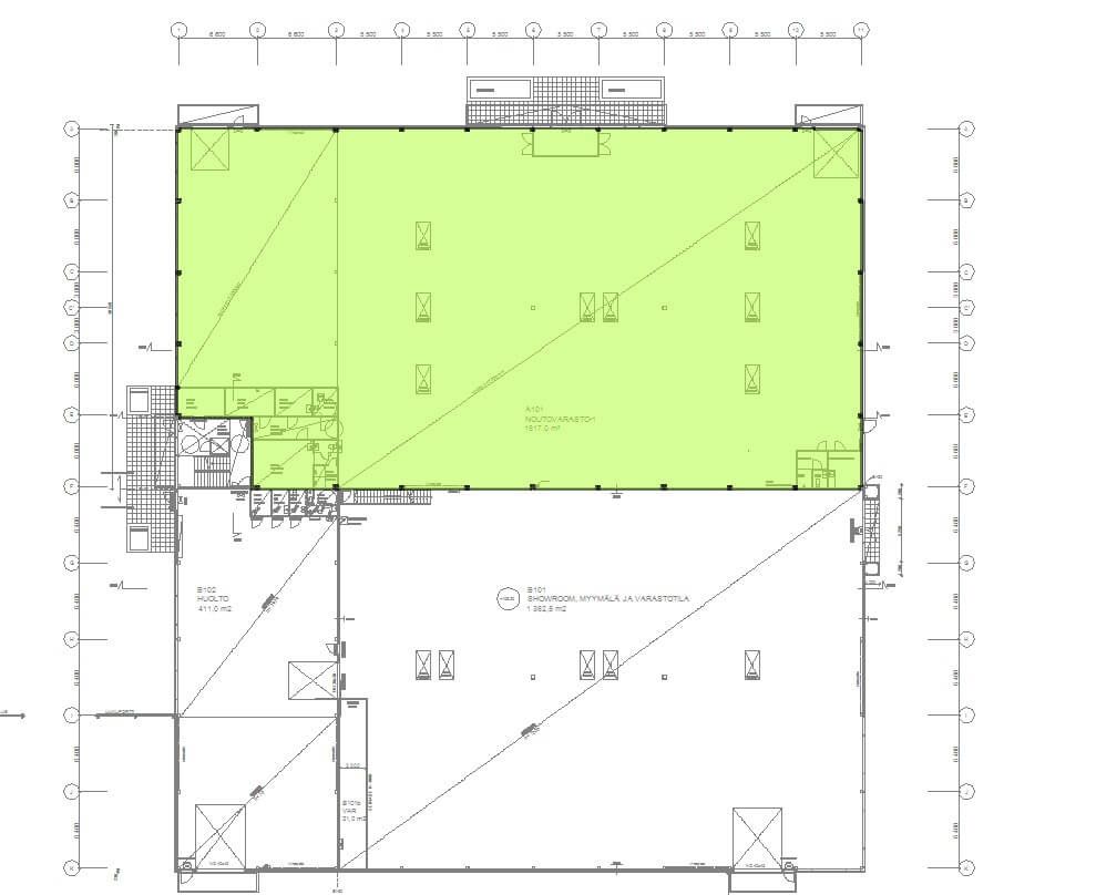
Näkyvältä paikalta myymälätilaa vapautumassa syksyllä 2026. Tila soveltuu hyvin esim. teknisen erikoiskaupan käyttöön. Uudehkoa ja siistiä tilaa. Toimitilan korkeus 7 m.
Lisätiedot ja kohde-esittelyt 020 7290 710, lisää kohteita premises.fi
Kohteella ei ole lain edellyttämää energiatodistusta tai energialuokka ei tiedossa.Kerros: 1-2
Osoite
Jasperintie 310 B, 33960 Pirkkala
Tilatyyppi
Liiketilaa
2135 m2
Tuotantotilaa
2135 m2
Varastotilaa
2135 m2
Yhteensä
2135 m2
Ota yhteyttä
CRE PREMISES
Puh. Näytä puhelinnumero 020 7290 710
Vantaankoskentie 14
01670 VANTAA
Pyydä lisätietoa
