Vuokrataan toimistotilat, liiketilat - Helsinki
Eteläranta 14, Kaartinkaupunki, 00130 Helsinki #10849860
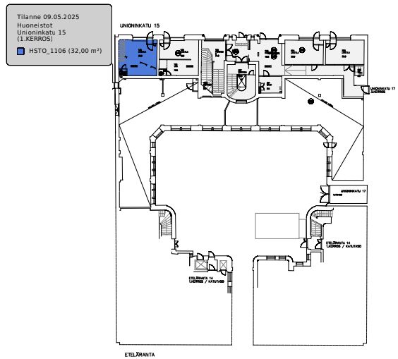
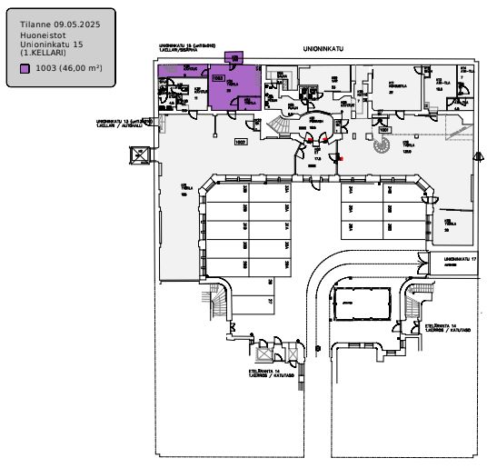
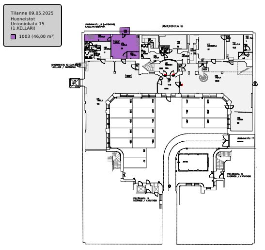
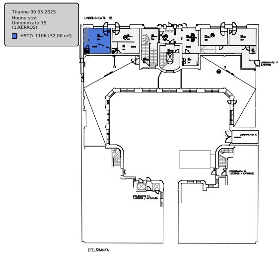
Vuokrataan katutason liiketila Helsingin keskustassa, kauppatorin kupeessa. Tila koostuu 32 m2 liiketilasta sekä 46 m2 varastosta, johon yhteys sisärappusilla. Sopii myös toimistotilaksi. Kyseinen tila sijaitsee Unioninkatu 15 puolella. Ohessa kuvia kiinteistön muista tiloista.
Helsingin Eteläranta 14/ Unioninkatu 15 kiinteistö tarjoaa toimitilaa huippupaikalla Kauppatorin laidalla. Kiinteistön tilat ovat helposti muunneltavissa vuokralaisen tarpeita vastaaviksi. Ylimmistä kerroksista on upeat näkymät merelle ja Katajanokalle. Vuokralaisten käytössä on Eteläranta 12:n pyöräparkki.
Lisätietoja numerosta 020 7290 710. Lisää kohteita osoitteessa www.premises.fi
Kohteella ei ole lain edellyttämää energiatodistusta.Kerros: 1
CRE PREMISES
Puh. Näytä puhelinnumero 020 7290 710
Vantaankoskentie 14
01670 VANTAA
