Vuokrataan - Helsinki
Mikonkatu 8, 00100 Helsinki #10849858
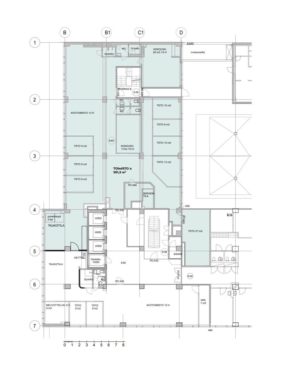
Vuokrataan 3. kerroksen 381,5 m2 toimisto Mikonkatu 8:ssa (Aikatalo)!
Tarjolla tilava ja toimiva toimistokokonaisuus keskeisellä sijainnilla Helsingin ydinkeskustassa. Tila sisältää useita työhuoneita, avotilaa sekä oman keittiön.
Sijainti Aikatalossa tarjoaa erinomaiset kulkuyhteydet ja kaikki keskustan palvelut välittömässä läheisyydessä.
Kysy lisää: jouko.raitanen@rhg.fi/0504695444
Osoite
Mikonkatu 8, 00100 Helsinki
Vapautuu
Kysy
Huoneiden lukumäärä
1
Energiatehokkuusluokka
Ei lain edellyttämää energiatodistusta
Ota yhteyttä
RHG Real Estate
Hämeenkatu 2 B20, 20500 Turku
Jouko Raitanen
Näytä puhelinnumero
050 469 5444
Pyydä lisätietoa
