Vuokrataan toimistotilat - Jyväskylä
Kauppakatu 28, Keskusta, 40100 Jyväskylä #10849836
Vuokrataan Jyväskylän keskustasta toimistotilaa
Osoite
Kauppakatu 28, 40100 Jyväskylä
Tilatyyppi
Toimistotilaa
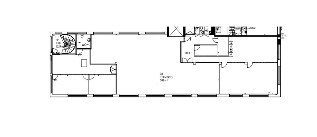
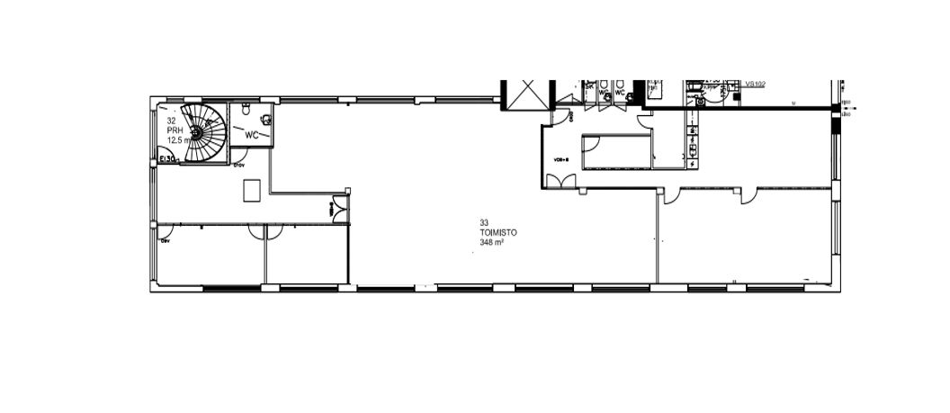
348 m2
Muuta
Vuokrataan Jyväskylän ydinkeskustasta heti vapaa ja siistikuntoinen 2. krs toimistotila. Avotilaa sekä erillisiä toimisto- ja neuvottelutiloja, sisääntuloaulassa mm. inva-wc, henkilökunnalle eriliset wc-tilat sekä tilava ja valoisa taukotila keittiöineen.
Ota yhteyttä näyttöä varten!
Ota yhteyttä näyttöä varten!
Vapautuu
Kysy
Kerros
2
Ota yhteyttä
Infonia Oy
Kauppakatu 18 A, 40100 Jyväskylä
Näytä puhelinnumero
+358 407579731
Mikko Hirvi
Näytä puhelinnumero
+358 407579731
Pyydä lisätietoa
