Vuokrataan toimistotilat, liiketilat, varastotilat - Tampere
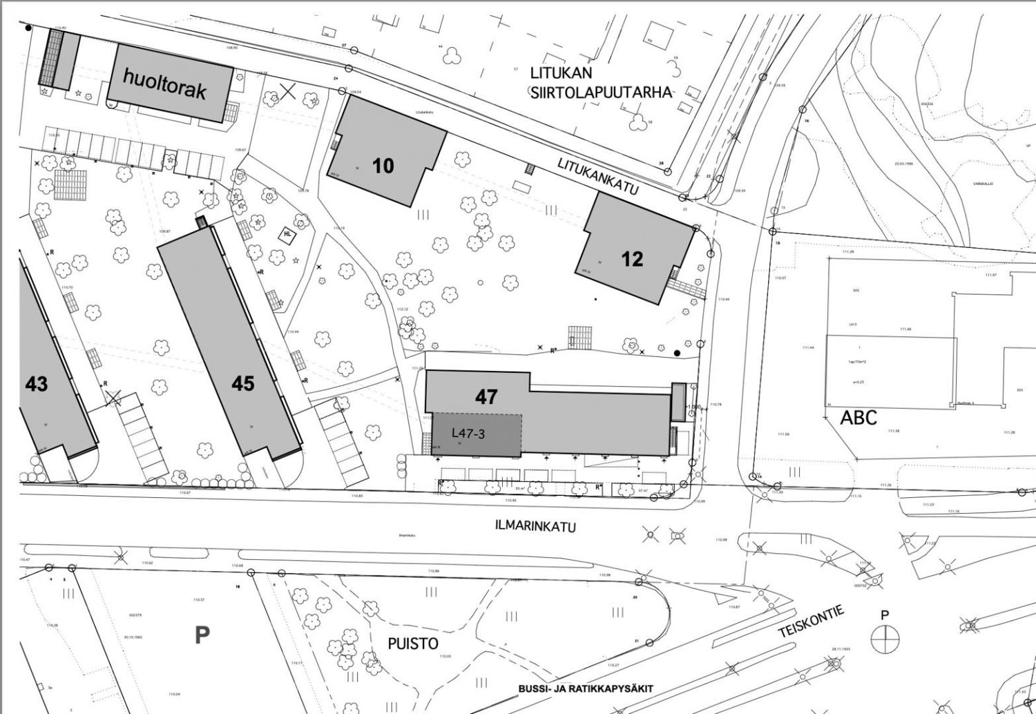
Ilmarinkatu 47, Kaleva, 33500 Tampere #10849835
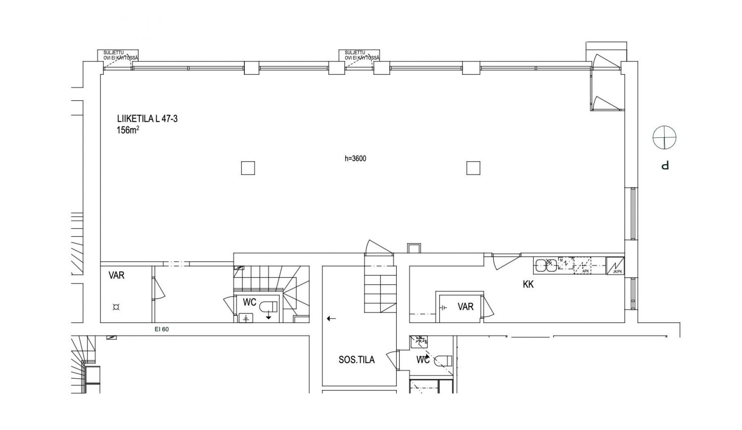
Monipuolinen toimitilakokonaisuus Ilmarinkadulla – toimisto 156 m² + alakerran tila 46 m² (yht. 199 m²)
Osoite
Ilmarinkatu 47, 33500 Tampere
Tilatyyppi
Toimistotilaa
156 - 199 m2
Liiketilaa
156 - 199 m2
Varastotilaa
43 m2
Yhteensä
199 m2
Kiinteistö
Tarjolla erittäin siisti ja monipuolisesti muokattava toimitilakokonaisuus Ilmarinkatu 47:stä, Asunto-osakeyhtiö Koskentien kiinteistöstä.
Tila sopii erinomaisesti yritykselle, joka arvostaa hyvää sijaintia ja mahdollisuutta rakentaa itselleen juuri oman näköiset tilat.
HUOM! Kalevan vanhaan ABC:n liikennemyymälään avautuu maaliskuussa 2026 Faasain paljon suosiota ja menestystä niittänyt thaimaalainen ravintola!
Yläkerta – 156 m² avaraa ja valoistaa toimistotilaa
Yläkerrasta löytyy toimiva ja valoisa toimistokokonaisuus, jossa on:
kaksi WC:tä
keittiö
toimivat työhuone- ja työpistejärjestelyt
mahdollisuus muokata tilaa yrityksen tarpeiden mukaan
Tila on siisti ja heti käyttökelpoinen, mutta samalla helposti muunneltavissa esimerkiksi avotoimistoksi, työhuoneiksi tai hybridimalliksi.
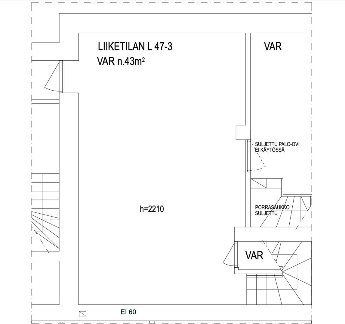
Alakerta – 43 m² monikäyttötila
Alakerran erillinen tila tarjoaa joustavuutta monenlaiseen käyttöön. Se sopii:
neuvotteluhuoneeksi
pieneksi varastoksi
harrastus- tai studiotilaksi
projektityötilaksi tai taukotilaksi
Tilaa voidaan hyödyntää juuri sinun yrityksesi tarpeiden mukaan – sen käyttömahdollisuudet ovat erittäin laajat.
Yhteensä 199 m² (156 m² + 43 m²)
Kokonaisuus tarjoaa sekä toimivaa toimistopintaa että joustavaa lisätilaa, jotka yhdessä muodostavat erittäin monipuolisen ja fiksun kokonaisuuden.
Kenelle tila sopii?
Tämä kokonaisuus toimii erinomaisesti esimerkiksi:
toimistokäyttöön >> Toimistokäytössä tässä tilassa on työntekijöitä ollut 6 ja 24 välillä
luoville aloille
studiotilaksi
yhdistykselle
konsultointiin, suunnitteluun tai projektityöntekoon
Tilat ovat siistit, käytännölliset ja muunneltavat — harvinaisen monikäyttöinen paketti!
Tila sopii erinomaisesti yritykselle, joka arvostaa hyvää sijaintia ja mahdollisuutta rakentaa itselleen juuri oman näköiset tilat.
HUOM! Kalevan vanhaan ABC:n liikennemyymälään avautuu maaliskuussa 2026 Faasain paljon suosiota ja menestystä niittänyt thaimaalainen ravintola!
Yläkerta – 156 m² avaraa ja valoistaa toimistotilaa
Yläkerrasta löytyy toimiva ja valoisa toimistokokonaisuus, jossa on:
kaksi WC:tä
keittiö
toimivat työhuone- ja työpistejärjestelyt
mahdollisuus muokata tilaa yrityksen tarpeiden mukaan
Tila on siisti ja heti käyttökelpoinen, mutta samalla helposti muunneltavissa esimerkiksi avotoimistoksi, työhuoneiksi tai hybridimalliksi.
Alakerta – 43 m² monikäyttötila
Alakerran erillinen tila tarjoaa joustavuutta monenlaiseen käyttöön. Se sopii:
neuvotteluhuoneeksi
pieneksi varastoksi
harrastus- tai studiotilaksi
projektityötilaksi tai taukotilaksi
Tilaa voidaan hyödyntää juuri sinun yrityksesi tarpeiden mukaan – sen käyttömahdollisuudet ovat erittäin laajat.
Yhteensä 199 m² (156 m² + 43 m²)
Kokonaisuus tarjoaa sekä toimivaa toimistopintaa että joustavaa lisätilaa, jotka yhdessä muodostavat erittäin monipuolisen ja fiksun kokonaisuuden.
Kenelle tila sopii?
Tämä kokonaisuus toimii erinomaisesti esimerkiksi:
toimistokäyttöön >> Toimistokäytössä tässä tilassa on työntekijöitä ollut 6 ja 24 välillä
luoville aloille
studiotilaksi
yhdistykselle
konsultointiin, suunnitteluun tai projektityöntekoon
Tilat ovat siistit, käytännölliset ja muunneltavat — harvinaisen monikäyttöinen paketti!
Vapautuu
Kysy
Kerros
Katutaso
Ota yhteyttä
LogisTila Oy
Kauppakatu 14, 33210 TAMPERE
Tuomas Lehtinen
Näytä puhelinnumero
044 491 5961
Pyydä lisätietoa
