Vuokrataan tuotantotilat, varastotilat - Kuopio
Terminaali @ Suurahontie 5, Saarijärvi B-Alue, 70460 Kuopio #10849831
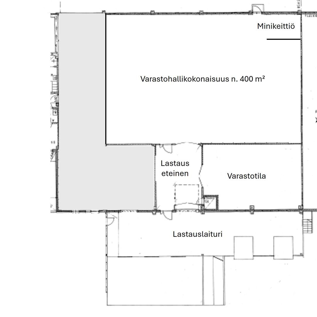
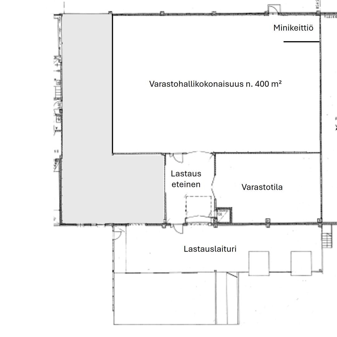
Logistiikkaterminaali
Osoite
Terminaali @ Suurahontie 5, 70460 Kuopio
Tilatyyppi
Tuotantotilaa
400 m2
Varastotilaa
400 m2
Yhteensä
400 m2
Kiinteistö
Logistiikkaterminaali n. 400 m² lastauslaiturilla
Vuokrattavana rehtiä logistiikkahallitilaa terminaali- ja varastokäyttöön.
Tilat sopivat erinomaisesti kuljetusliikkeelle tai vastaavaan tyyppisen yrityksen terminaali- ja varastointikäyttöön.
Lastauslaituripaikkoja on yhdistelmälle ja pakettiautolle.
HCT-yhdistelmä sopii pyörähtämään siltaan purkuun ja lastaukseen. Piha-alueen päädyissä on liittymät, joten liikennöinti tontilla luonnistuu vaivattomasti.
Perusvalmiina on:
asfaltoitu piha-alue
aidattu piha-alue
lastaulaituri lipalla
tavaraluiska sillalle
käyntiovi hallitilohin
nosto-ovi L 2,35 m x K 3,0 m
lastauseteinen ja läppäovet
erillinen korkea ja lämmin varastotila
korkeaa hallitilaa kattotuoliin 5,5 metriä
tasainen jämäkkä lattia
voimavirta 16A
minikeittiö
toimistoparvi
WC + SK
Kiinteistö ja sijainti
Terminaali sijaitsee Kuopion pohjoispuolella Kellolahdentieltä vasemmalle Suurahontielle.
Moottoritien E63 (Vitostien) rampilta 70 on tontille matkaa vajaat 2 kilometriä eli 5-10 minuuttia.
Alueella on muitakin logistiikkataloja ja tuotantoteollisuutta mm. Refresco juomatehdas, joten raskaankaluston liikkuminen alueella on sujuvaa.
Jakelureiteille on jokasuuntaan hyvät kulkureitit, mikäli ei tarvitse moottoritietä käyttää.
Piha-alueella on parkkitilaa runsaasti ja toimistotilaa löytyy kiinteistöltä enemmäkin.
Soita ja sovi kohdenäyttö!
Vuokrattavana rehtiä logistiikkahallitilaa terminaali- ja varastokäyttöön.
Tilat sopivat erinomaisesti kuljetusliikkeelle tai vastaavaan tyyppisen yrityksen terminaali- ja varastointikäyttöön.
Lastauslaituripaikkoja on yhdistelmälle ja pakettiautolle.
HCT-yhdistelmä sopii pyörähtämään siltaan purkuun ja lastaukseen. Piha-alueen päädyissä on liittymät, joten liikennöinti tontilla luonnistuu vaivattomasti.
Perusvalmiina on:
asfaltoitu piha-alue
aidattu piha-alue
lastaulaituri lipalla
tavaraluiska sillalle
käyntiovi hallitilohin
nosto-ovi L 2,35 m x K 3,0 m
lastauseteinen ja läppäovet
erillinen korkea ja lämmin varastotila
korkeaa hallitilaa kattotuoliin 5,5 metriä
tasainen jämäkkä lattia
voimavirta 16A
minikeittiö
toimistoparvi
WC + SK
Kiinteistö ja sijainti
Terminaali sijaitsee Kuopion pohjoispuolella Kellolahdentieltä vasemmalle Suurahontielle.
Moottoritien E63 (Vitostien) rampilta 70 on tontille matkaa vajaat 2 kilometriä eli 5-10 minuuttia.
Alueella on muitakin logistiikkataloja ja tuotantoteollisuutta mm. Refresco juomatehdas, joten raskaankaluston liikkuminen alueella on sujuvaa.
Jakelureiteille on jokasuuntaan hyvät kulkureitit, mikäli ei tarvitse moottoritietä käyttää.
Piha-alueella on parkkitilaa runsaasti ja toimistotilaa löytyy kiinteistöltä enemmäkin.
Soita ja sovi kohdenäyttö!
Vapautuu
Kysy
Kerros
Katutaso
Lastauslaituri
Ota yhteyttä
Logistila Oy
Ankkuritie 1, 70460 KUOPIO
Timo Puustinen
Näytä puhelinnumero
0400 33 00 30
Pyydä lisätietoa
