Vuokrataan toimistotilat - Helsinki
Pursimiehenkatu 29-31, Punavuori, 00150 Helsinki #10849822
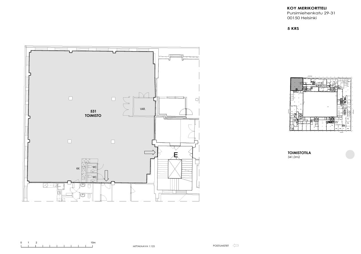
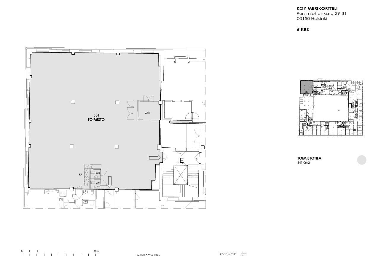
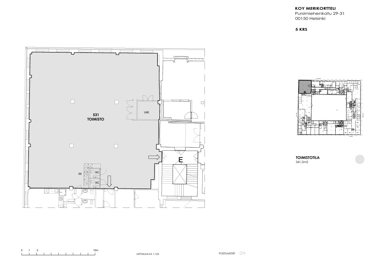
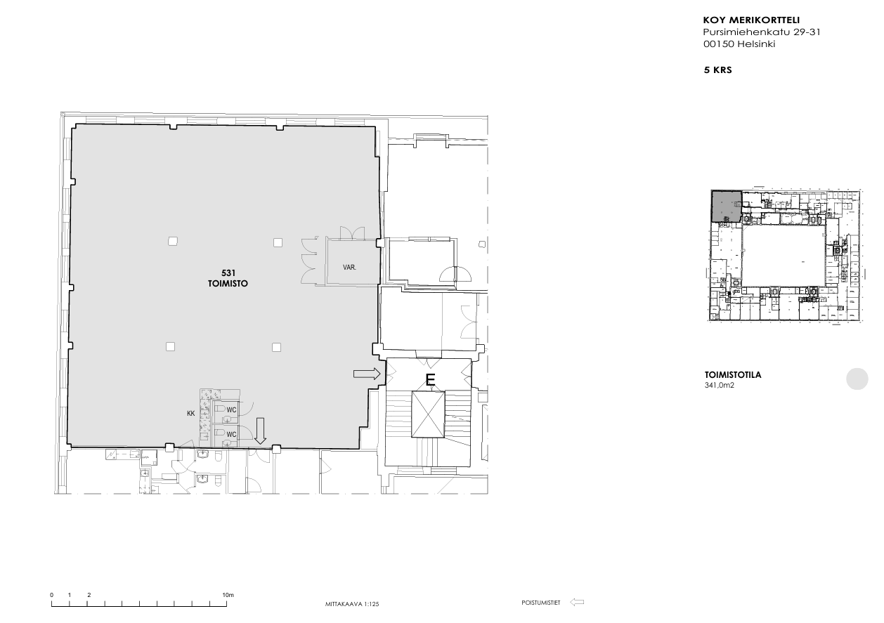
Merikortteli - Toimisto 341 m²
Osoite
Pursimiehenkatu 29-31, 00150 Helsinki
Tilatyyppi
Toimistotilaa
341 m2
Pohjapiirros
Kiinteistö
Valoisa avotila viidennessä kerroksessa hurmaa suurilla ikkunoillaan ja rouhealla, industrial-henkisellä ilmeellään. 341 m² muuttovalmis toimisto tarjoaa tilaa 10–25 henkilölle ja on suunniteltu inspiroivaan työskentelyyn. Työtiloissa on laadukas tekstiilipalamatto, tyylikäs tumma avokeittiö sekä tehosteväriset seinät ja pilarit, jotka tuovat tilaan modernia särmää. Avaruus, korkeat ikkunat ja urbaani tunnelma luovat inspiroivan työympäristön yritykselle, joka arvostaa rouheaa industrial-tyyliä ja toiminnallisuutta.
Merikortteli – Historiallinen ja eläväinen työympäristö Punavuoren sydämessä
Merikortteli on kuusikerroksinen, vuonna 1920 rakennettu kiinteistö, joka kattaa kokonaisen korttelin ja tarjoaa ainutlaatuisen yhdistelmän historiaa ja modernia toiminnallisuutta.
Sijainti
Keskeinen sijainti Helsingin Punavuoressa takaa erinomaiset liikenneyhteydet: raitiovaunupysäkki on aivan vieressä, bussipysäkki 130 metrin päässä, metro 1,5 km ja lähijuna 1,9 km. Autolla liikkuville on lämmitetty parkkihalli ja sisäpihan paikat (180 paikkaa). Lentokentälle on vain 22 km.
Punavuori on täynnä elämää: lähistöltä löytyy lukuisia ravintoloita, kahviloita, kivijalkaliikkeitä sekä kulttuurielämyksiä. Kaivopuisto ja Eiran ranta ovat kävelyetäisyydellä, ja Hietalahden kauppahalli on aivan nurkan takana.
Alueella on lisäksi erinomainen pyöräverkosto, useita hotelleja, liikuntapalveluita ja kulttuurikohteita. Hernesaaren ja Kaivopuiston merelliset maisemat ovat lähellä.
Palvelut
Merikortteli tarjoaa:
neuvotteluhuoneita ja projektityötiloja joustavilla sopimuksilla
ravintoloita ja kahviloita kiinteistössä
ruokakauppa
lämmitetty parkkihalli ja pyöräparkki
tavarahissi ja modernit yhteiskäyttötilat
Vastuullisuus
Merikortteli on tuotu tähän päivään vastuullisesti:
hiilineutraali energiankäyttö (kotimainen tuulisähkö, kiertolämpö, kaukojäähdytys)
BREEAM Very Good -sertifikaatti
aurinkovoimala, digitalisoitu lämmön- ja ilmanvaihdon ohjaus, automaattinen valaistus ja vedenkulutus
materiaalivalinnat ja saneeraus historiaa kunnioittaen
sähköauton latauspisteet ja lajittelupisteet
Ota yhteyttä
Kiinnostuitko? Ota yhteyttä ja tule tutustumaan!
Toimitilavälityspalvelumme on tilanhakijalle maksuton.
Merikortteli – Historiallinen ja eläväinen työympäristö Punavuoren sydämessä
Merikortteli on kuusikerroksinen, vuonna 1920 rakennettu kiinteistö, joka kattaa kokonaisen korttelin ja tarjoaa ainutlaatuisen yhdistelmän historiaa ja modernia toiminnallisuutta.
Sijainti
Keskeinen sijainti Helsingin Punavuoressa takaa erinomaiset liikenneyhteydet: raitiovaunupysäkki on aivan vieressä, bussipysäkki 130 metrin päässä, metro 1,5 km ja lähijuna 1,9 km. Autolla liikkuville on lämmitetty parkkihalli ja sisäpihan paikat (180 paikkaa). Lentokentälle on vain 22 km.
Punavuori on täynnä elämää: lähistöltä löytyy lukuisia ravintoloita, kahviloita, kivijalkaliikkeitä sekä kulttuurielämyksiä. Kaivopuisto ja Eiran ranta ovat kävelyetäisyydellä, ja Hietalahden kauppahalli on aivan nurkan takana.
Alueella on lisäksi erinomainen pyöräverkosto, useita hotelleja, liikuntapalveluita ja kulttuurikohteita. Hernesaaren ja Kaivopuiston merelliset maisemat ovat lähellä.
Palvelut
Merikortteli tarjoaa:
neuvotteluhuoneita ja projektityötiloja joustavilla sopimuksilla
ravintoloita ja kahviloita kiinteistössä
ruokakauppa
lämmitetty parkkihalli ja pyöräparkki
tavarahissi ja modernit yhteiskäyttötilat
Vastuullisuus
Merikortteli on tuotu tähän päivään vastuullisesti:
hiilineutraali energiankäyttö (kotimainen tuulisähkö, kiertolämpö, kaukojäähdytys)
BREEAM Very Good -sertifikaatti
aurinkovoimala, digitalisoitu lämmön- ja ilmanvaihdon ohjaus, automaattinen valaistus ja vedenkulutus
materiaalivalinnat ja saneeraus historiaa kunnioittaen
sähköauton latauspisteet ja lajittelupisteet
Ota yhteyttä
Kiinnostuitko? Ota yhteyttä ja tule tutustumaan!
Toimitilavälityspalvelumme on tilanhakijalle maksuton.
Vapautuu
Kysy
Kerros
5
Ota yhteyttä
Logistila Oy
Kylätie 11-13, 00320 HELSINKI
Karoliina Turppo
Näytä puhelinnumero
050 345 3258
Pyydä lisätietoa
