Vuokrataan liiketilat - Helsinki
Kotisaarenkatu 3, Toukola, Toukola, 00550 Helsinki #10849809
Osoite
Kotisaarenkatu 3, Toukola, 00550 Helsinki
Tilatyyppi
Liiketilaa
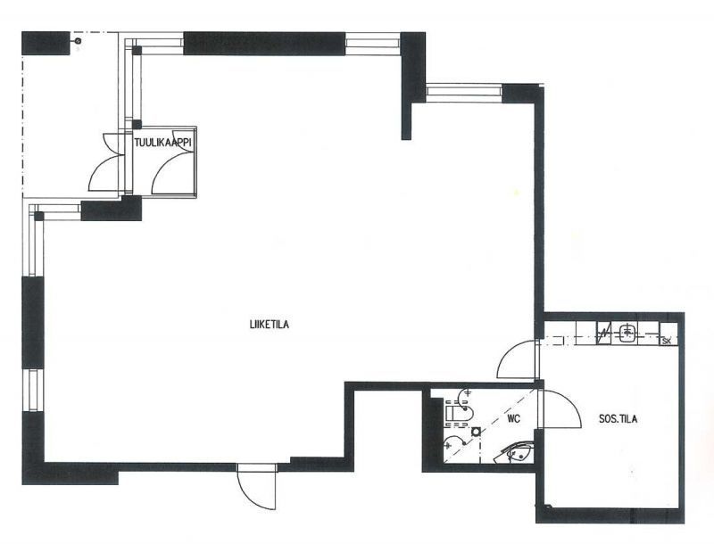
116,5 m2
Kiinteistö
Vuokrataan Toukolasta asuinkerrostalon alakerran/katutaso liiketilatila yht. 116,5 m². Tila on valoisa ja avara, jossa esteettömyys huomioitu.
Näkyvä paikka kiinteistön kulmauksessa, jossa esteettömyys huomioitu.
Kotisaaren- ja Toukolankadun kulmauksessa.
Ei sovellu ravintolakäyttöön.
Näkyvä paikka kiinteistön kulmauksessa, jossa esteettömyys huomioitu.
Kotisaaren- ja Toukolankadun kulmauksessa.
Ei sovellu ravintolakäyttöön.
Pysäköinti
Kadunvarsi kiekolla.
Mahdollisuus vuokrata autopaikka autohallista.
Mahdollisuus vuokrata autopaikka autohallista.
Vapautuu
Heti
Energiatehokkuusluokka
C
Katutasossa
Ota yhteyttä
Comreal Oy LKV
Tuula Leikas
Näytä puhelinnumero
040 531 3722
P.
Näytä puhelinnumero
020 744 1000
Läkkisepänkuja 6, 00620 Helsinki
Comreal Oy on kasvava ja osaava kiinteistöalan palveluntuottaja kiinteistöjen omistajille ja käyttäjille.
Kiinteistö on sijoittajalle hyvä sijoitus vain, jos siellä on tyytyväiset asiakkaat, eli vuokralaiset. Siksi laadukas asiakaspalvelu on toiminnan lähtökohta.
Pyydä lisätietoa
