Myydään toimistotilat, liiketilat, varastotilat - Hyvinkää
Hakakalliontie 7, 05460 Hyvinkää #10849780
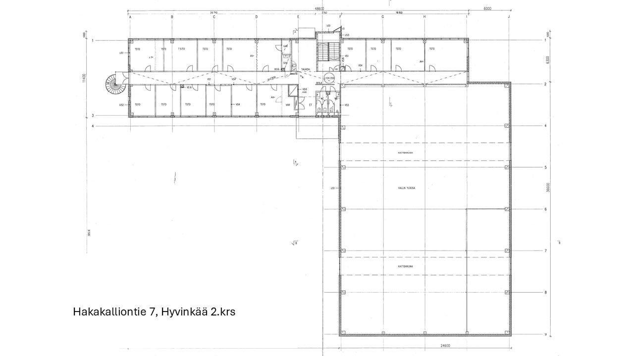
Kokonainen kiinteistö vapaana vuokrattavaksi tai myytäväksi. Päärakennus on kaksikerroksinen ja pitää sisällään varasto- myymälä- sekä toimistotilat. Myös kellarissa on vapaata varastotilaa n 75 m2.
Kohde sijaitsee aivan lentokentän vieressä ja sijainti on erinomainen joka suuntaan. Toimitilat ovat olleet Onnisen myymälä käytössä ja joissa lisänä siistit toimistotilat. Kohteella erinomainen pihatila.
Lisätietoja 020 7290 710 ja lisää kohteita premises.fi.
Kohteella ei ole lain edellyttämää energiatodistusta tai energialuokka ei tiedossa.Kerros: 1-2
Hakakallio 60 m
K-Market Hakalantori 1,6 km
Hyvinkään juna-asema 3,5 km
CRE PREMISES
Puh. Näytä puhelinnumero 020 7290 710
Vantaankoskentie 14
01670 VANTAA
