Vuokrataan toimistotilat - Espoo
Karaportti 5, 02610 Espoo #10849772
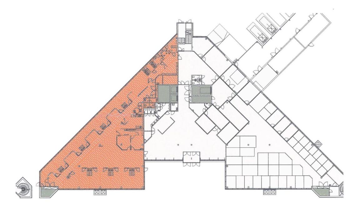
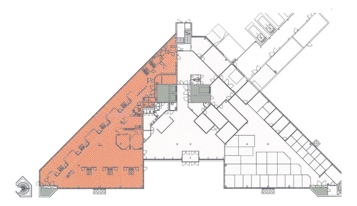
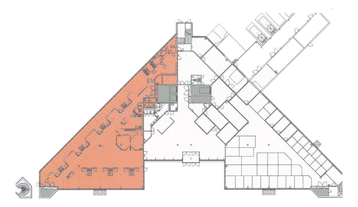
Vuokrattavissa muuttovalmista, tyylikästä toimitilaa 1. kerroksesta. Kiinteistössä palvelee aulapalvelu, ja käytettävissä ovat myös edustavat saunatilat.
Karaportti on luotu laatutietoisen yrityksen tarpeisiin. Valoisat tilat ovat vaivattomasti muunneltavissa avo- ja huonetoimistoksi sekä niiden yhdistelmiksi. Kiinteistössä on moderni talotekniikka, neuvottelu- ja edustustilat sekä lastauslaituri ja pienvarastotilaa. Viereisessä talossa palvelee lounasravintola.
Lisätiedot 020 7290 710. Lisää kohteita www.premises.fi
Kohteella ei ole lain edellyttämää energiatodistusta tai energialuokka ei tiedossa.Kerros: 1
CRE PREMISES
Puh. Näytä puhelinnumero 020 7290 710
Vantaankoskentie 14
01670 VANTAA
