Vuokrataan toimistotilat - Helsinki
Paasivuorenkatu 3, Hakaniemi, 00530 Helsinki #10849770
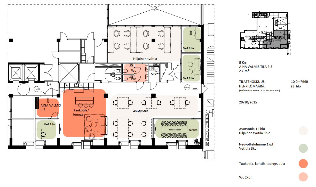
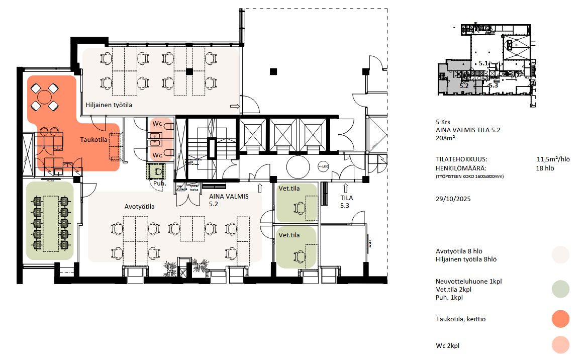
Tulossa kaksi uutta Aina Valmis -tilaa; 231 m2 ja 208 m2. Tilat toteutetaan konseptin mukaisesti laadukkailla, vastuullisilla materiaaleilla ja moderneilla tilaratkaisuilla, jotka vastaavat nykytyöelämän tarpeisiin.
Paasivuorenkatu 3 tarjoaa tyylikästä toimitilaa hyvällä paikalla Hakaniemessä! Talossa on toiminut aiemmin Nordean konttori. Talo on peruskorjattu vuonna 2011 sen alkuperäistä tunnelmaa kunnioittaen. Rakennuksen pankkisali ja aulatilat luonnonkivilaatoituksineen henkivät entisaikojen tunnelmaa.
Kiinteistössä palvelee edustava tilaussauna ja sisäpihalla on viihtyisä talvipuutarha. Näkymät tiloista avautuvat upeaan Paasivuorenpuistikkoon. Liikenneyhteydet kehittyvään ja uudistuvaan Hakaniemeen ovat erinomaiset ja läheisestä pysäköintihallista on mahdollista vuokrata parkkitilaa.
Lisätiedot 020 7290 710. Lisää kohteita www.premises.fi
Kohteella ei ole lain edellyttämää energiatodistusta tai energialuokka ei tiedossa.Kerros: 5
CRE PREMISES
Puh. Näytä puhelinnumero 020 7290 710
Vantaankoskentie 14
01670 VANTAA
