Vuokrataan toimistotilat - Helsinki
Hämeentie 19, Sörnäinen, 00500 Helsinki #10849769
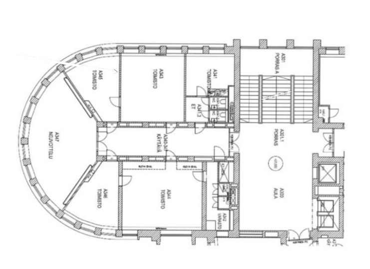
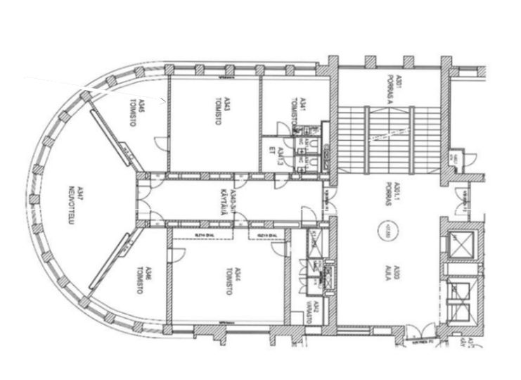
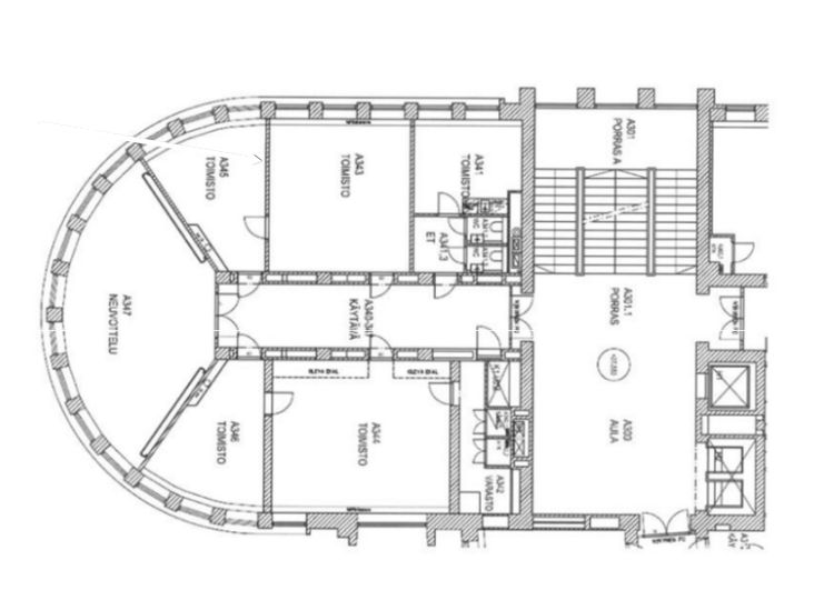
Vuokrataan toimitilaa noin 213 m2 hyvien kulkuyhteyksien ääreltä Sörnäisissä.
Upea industrial-henkinen kiinteistö Sörnäisissä yhdistää arkkitehtonisesti vaikuttavan estetiikan ja modernin talotekniikan. Kiinteistössä palvelee lounasravintola, ja lähistöllä on lukemattomia Kallion ravintoloita sekä kahviloita.
Lisätietoja 020 7290 710 ja lisää kohteita premises.fi
Kohteella ei ole lain edellyttämää energiatodistusta tai energialuokka ei tiedossa.Kerros: 3
Osoite
Hämeentie 19, 00500 Helsinki
Tilatyyppi
Toimistotilaa
212,9 m2
Ota yhteyttä
CRE PREMISES
Puh. Näytä puhelinnumero 020 7290 710
Vantaankoskentie 14
01670 VANTAA
Pyydä lisätietoa
