Vuokrataan liiketilat - Helsinki
Hämeentie 19, Sörnäinen, 00500 Helsinki #10849768
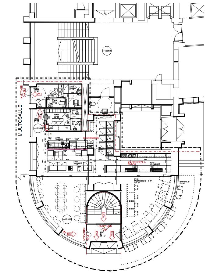
Tyylikäs ravintolatila täysin saneeratussa funkistyylisessä kiinteistössä. Tila voidaan yhdistää K1-kerroksen ravintolatilan kanssa ja vuokrata kokonaisuutena, mikä tarjoaa erinomaiset mahdollisuudet monipuoliseen ravintolatoimintaan.
Upea industrial-henkinen kiinteistö Sörnäisissä yhdistää arkkitehtonisesti vaikuttavan estetiikan ja modernin talotekniikan.
Lisätietoja 020 7290 710 ja lisää kohteita premises.fi
Kohteella ei ole lain edellyttämää energiatodistusta tai energialuokka ei tiedossa.Kerros: 1
Osoite
Hämeentie 19, 00500 Helsinki
Tilatyyppi
Liiketilaa
175 m2
Ota yhteyttä
CRE PREMISES
Puh. Näytä puhelinnumero 020 7290 710
Vantaankoskentie 14
01670 VANTAA
Pyydä lisätietoa
