Vuokrataan - Helsinki
Fredrikinkatu 47, 00100 Helsinki #10849717
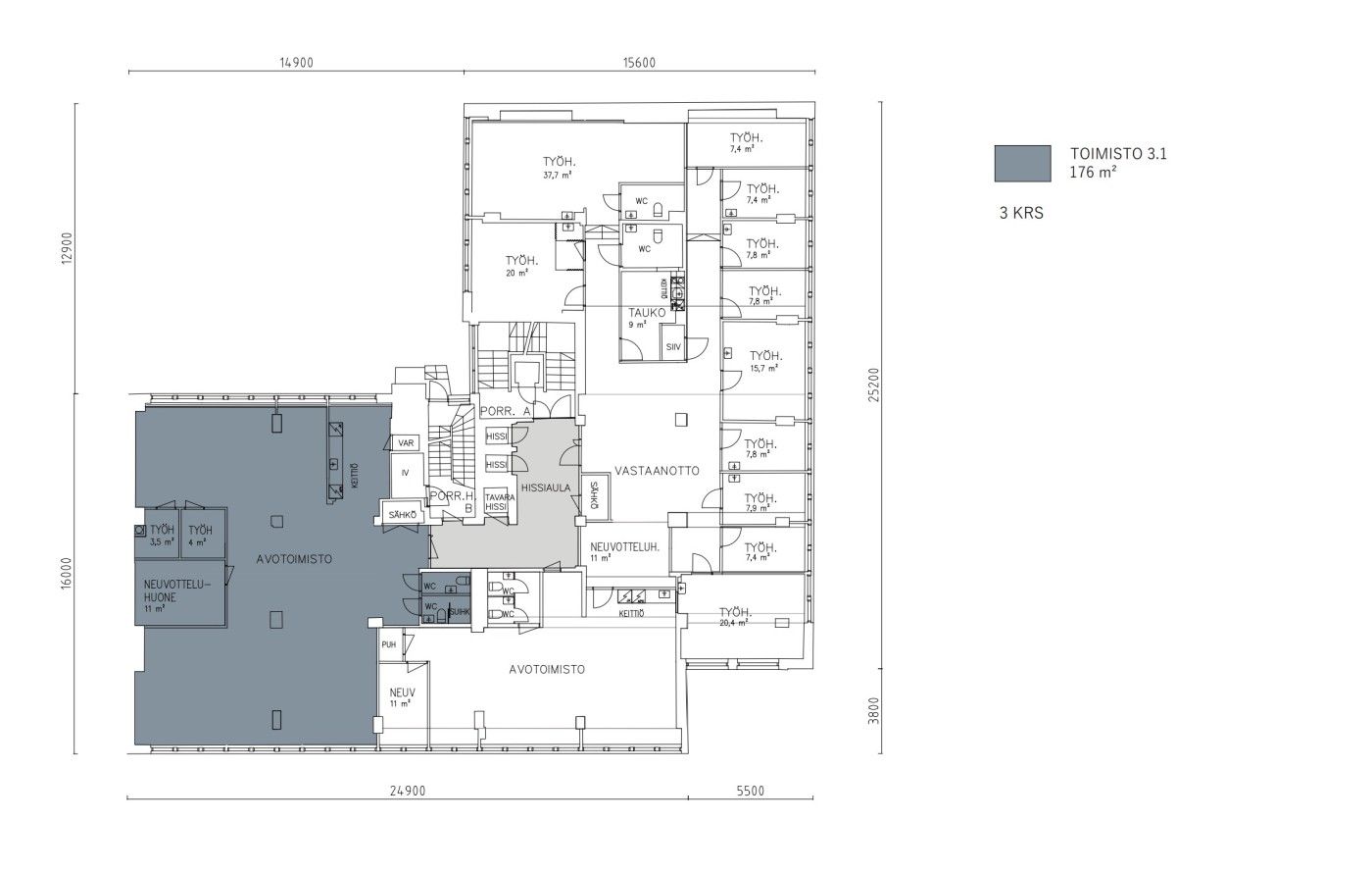
Vuokrataan valoisa 176 m2 avotoimisto Kampissa – läpitalon tila, erinomainen sijainti!
Tarjolla kolmannen kerroksen valoisa ja avara 176 m2 toimistotila Helsingin Kampissa. Läpitalon ratkaisu tuo runsaasti luonnonvaloa ja tekee tilasta miellyttävän ja inspiroivan työympäristön.
Tila sisältää avaran avotilan lisäksi oman neuvotteluhuoneen, kaksi erillistä pientyöskentelytilaa sekä oman suihkun. Kokonaisuus palvelee erinomaisesti niin luovaa tiimityötä kuin keskittymistä vaativia tehtäviä.
Kiinteistö tarjoaa arkea helpottavia palveluja, kuten henkilöstöravintolan, ja alueen kulkuyhteydet ovat erinomaiset. Metroasemalle on noin 500 metriä ja Helsingin päärautatieasemalle noin 900 metriä, työmatkat sujuvat vaivattomasti.
Kysy lisää: jouko.raitanen@rhg.fi/0504695444
RHG Real Estate
Hämeenkatu 2 B20, 20500 Turku
Jouko Raitanen
Näytä puhelinnumero
050 469 5444
