Vuokrataan toimistotilat - Helsinki
Fredrikinkatu 55, Keskusta, 00100 Helsinki #10849689
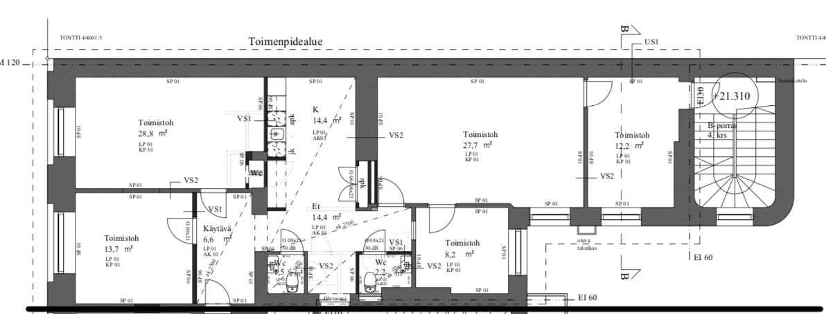
Vuokrataan toimistotila Kampista. Tämä tehokas ja siisti tila koostuu avotyöskentelytilasta, 4 työhuoneesta, tyylikkäästä keittiöstä ja kahdesta vessasta. Tila vapautuu 1.2.2026.
Loistava sijainti Kampin metroaseman ja palveluiden vierestä.
Lisätietoja soita 020 730 4530 tai info@repoint.fi. Palvelumme on tilanhakijalle ilmainen.
Osoite
Fredrikinkatu 55, 00100 Helsinki
Tilatyyppi
Toimistotilaa
120 m2
Vapautuu
Kysy
Kerros
4
Ota yhteyttä
Repoint Toimitilat Oy
Itälahdenkatu 22 B, 00210 Helsinki
Näytä puhelinnumero
020 730 4530
Lisätietoja soita Näytä puhelinnumero 020 730 4530 tai info@repoint.fi
https://repoint.fi/Pyydä lisätietoa
