Vuokrataan toimistotilat - Helsinki
Esterinportti 2, Pasila, 00240 Helsinki #10849688
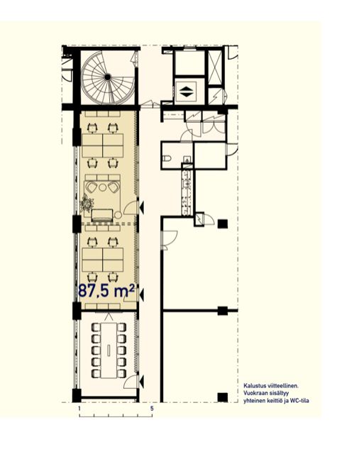
Vuokrataan juuri remontoitua toimistotilaa Pasilasta. Tila koostuu kahdesta reilun kokoisesta huoneesta, sekä kerroksen yhteiskäyttöisistä tiloista. Toimisto sijaitsee 3. kerroksen pientoimistoalueella, jossa vuokralaisilla on käytettävissään neuvotteluhuone sekä keittiö.
Esterinportti 2 talossa on hyvät palvelut talon vuokralaisille, kuten aulapalvelu, suosittu lounasravintola Factory, kuntosali, pyöräparkki, sauna- ja suihkutilat, sekä parkkihalli.
Kohde on hyvin saavutettavissa ja kattavat palvelut löytyvät läheltä. Pasilan juna-asemalle ja Triplaan alle 5 minuutin kävelymatka, sekä raitiovaunut 2,7 ja 9 kulkevat vierestä.
Lisätietoja soita 020 730 4530 tai info@repoint.fi. Palvelumme on tilanhakijalle ilmainen.
Repoint Toimitilat Oy
Itälahdenkatu 22 B, 00210 Helsinki
Näytä puhelinnumero
020 730 4530
Lisätietoja soita Näytä puhelinnumero 020 730 4530 tai info@repoint.fi
https://repoint.fi/