Vuokrataan liiketilat - Helsinki
Pursimiehenkatu 29-31, Punavuori, 00150 Helsinki #10849686
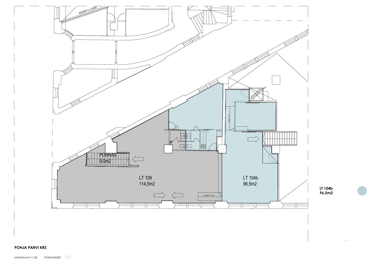
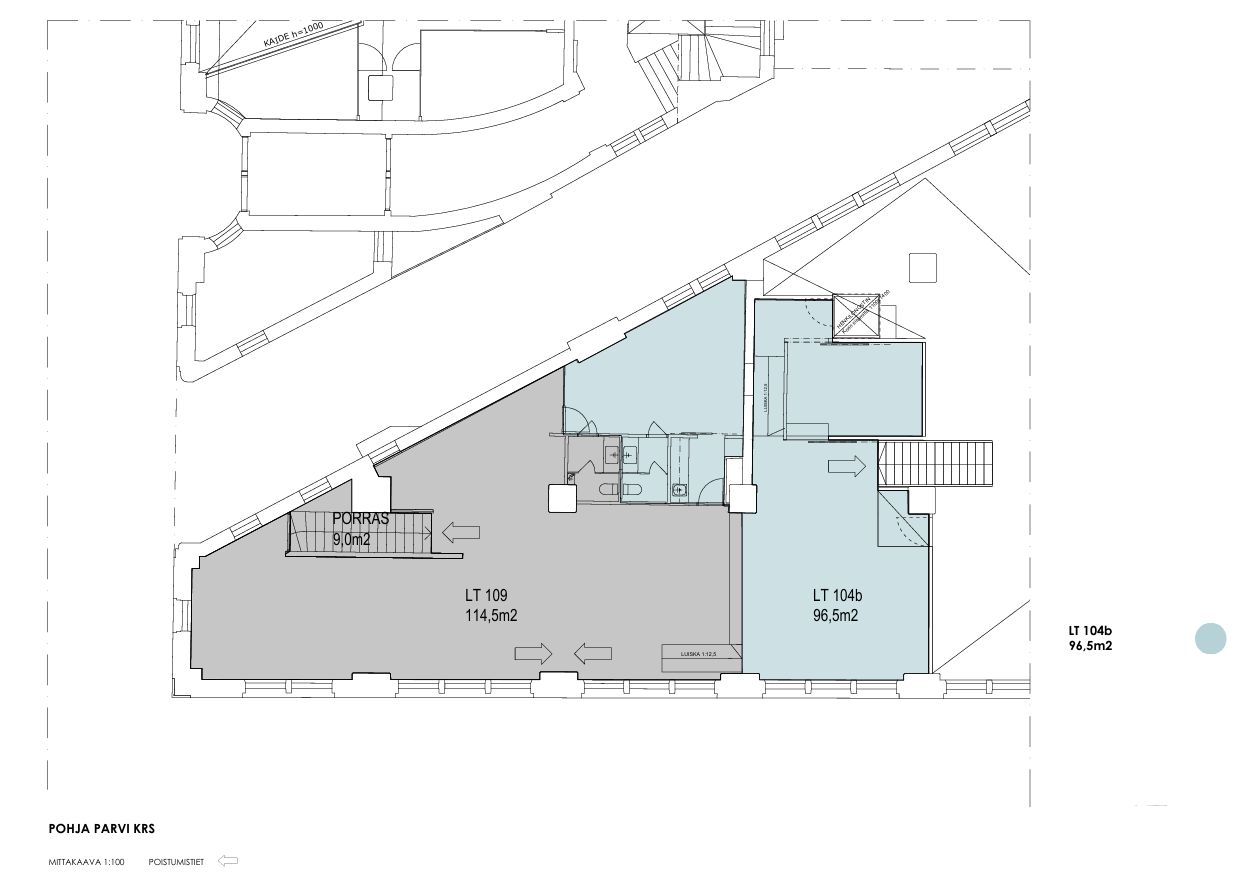
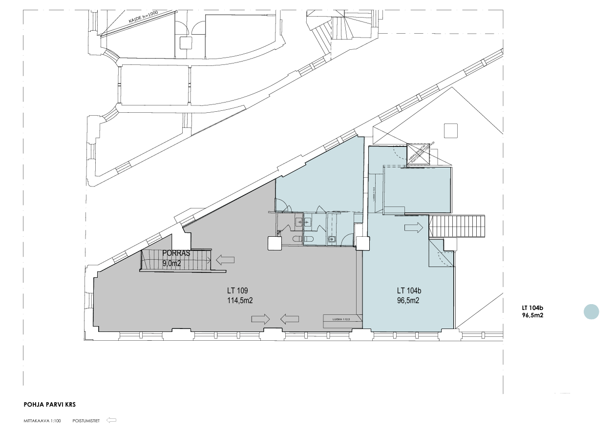
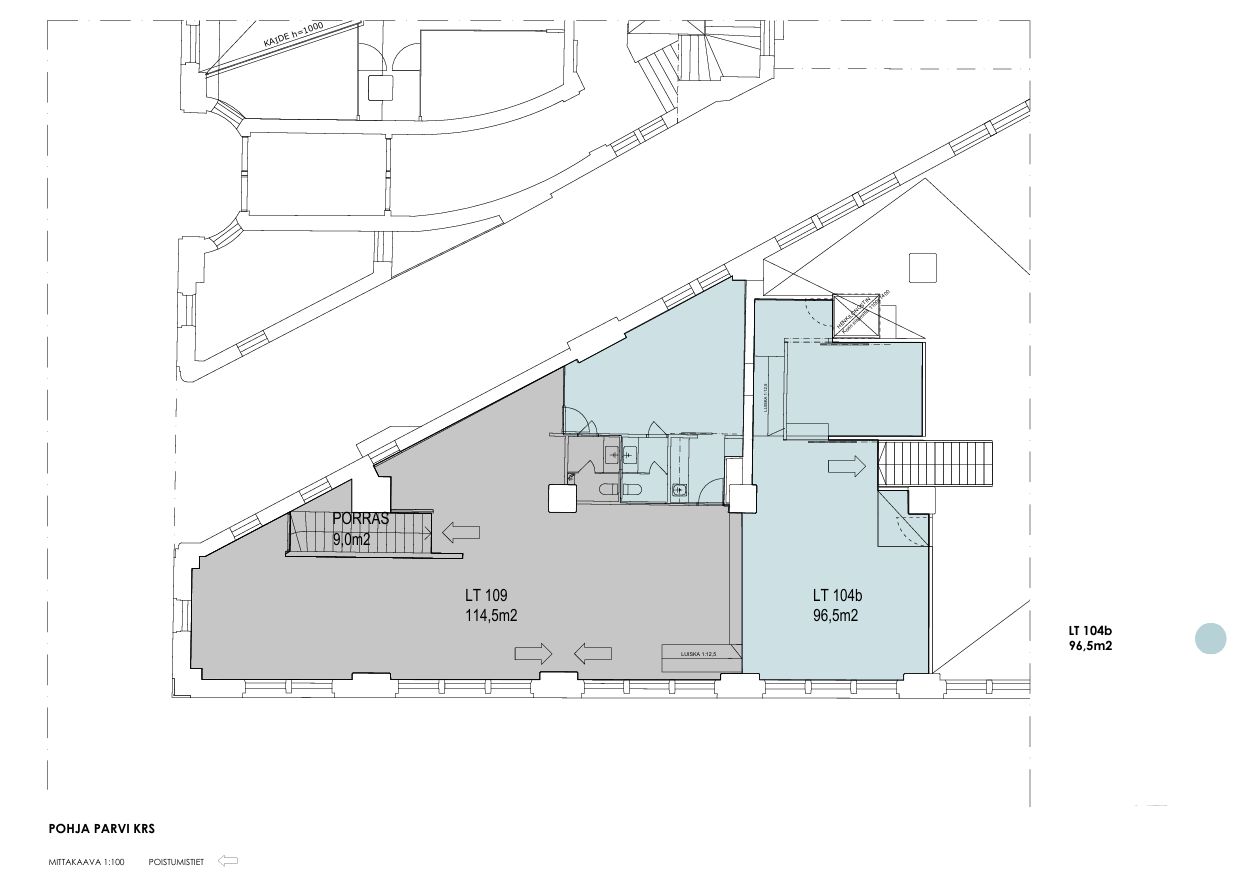
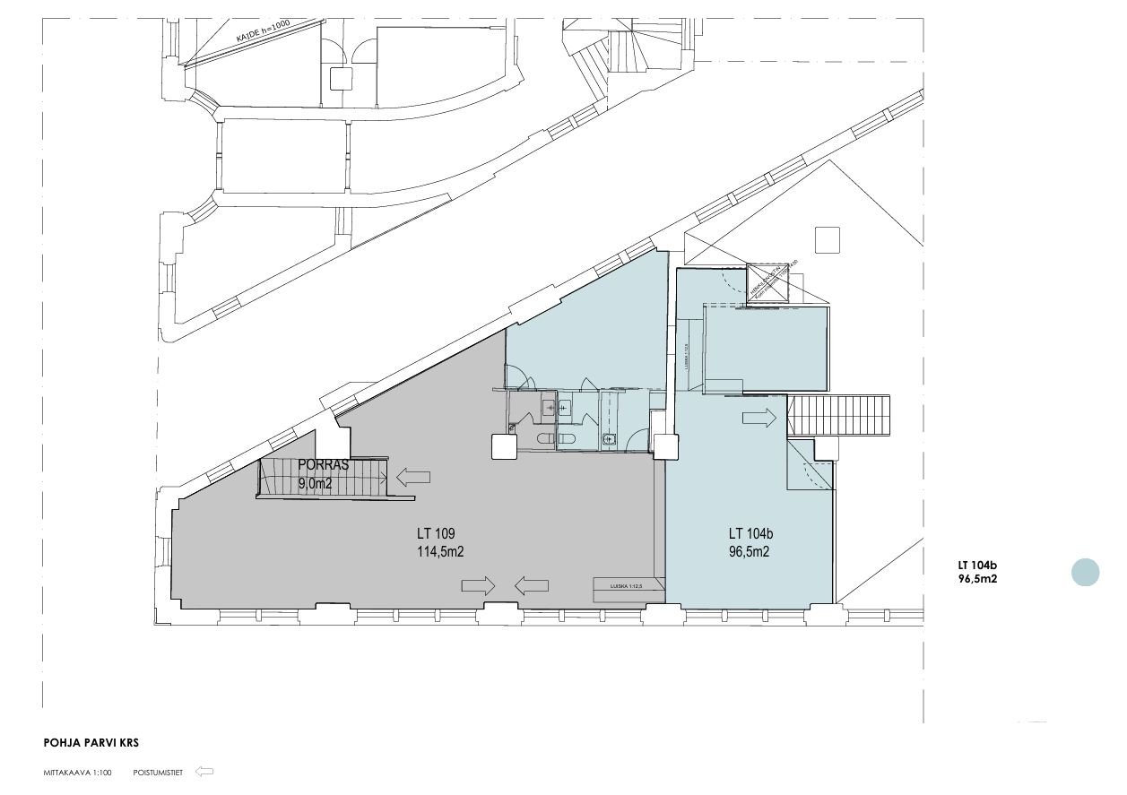
Merikortteli - Liiketila 114,5 m²
Osoite
Pursimiehenkatu 29-31, 00150 Helsinki
Tilatyyppi
Liiketilaa
115 m2
Pohjapiirros
Kiinteistö
Vapaana ainutlaatuinen 114,5 m² ensimmäisen kerroksen liiketila tunnelmallisessa Merikorttelissa Punavuoressa. Tilaan kuljetaan omia portaita pitkin suoraan kadulta, mikä tekee siitä helposti saavutettavan ja näyttävän. Sijainti Bob’s Laundryn yläkerrassa tuo tilalle persoonallista fiilistä ja urbaania tunnelmaa. Tila sopii erinomaisesti parturi-kampaamoksi tai showroomiksi.
Tervetuloa tutustumaan!
Merikortteli – Historiallinen ja eläväinen työympäristö Punavuoren sydämessä
Merikortteli on kuusikerroksinen, vuonna 1920 rakennettu kiinteistö, joka kattaa kokonaisen korttelin ja tarjoaa ainutlaatuisen yhdistelmän historiaa ja modernia toiminnallisuutta.
Sijainti
Keskeinen sijainti Helsingin Punavuoressa takaa erinomaiset liikenneyhteydet: raitiovaunupysäkki on aivan vieressä, bussipysäkki 130 metrin päässä, metro 1,5 km ja lähijuna 1,9 km. Autolla liikkuville on lämmitetty parkkihalli ja sisäpihan paikat (180 paikkaa). Lentokentälle on vain 22 km.
Punavuori on täynnä elämää: lähistöltä löytyy lukuisia ravintoloita, kahviloita, kivijalkaliikkeitä sekä kulttuurielämyksiä. Kaivopuisto ja Eiran ranta ovat kävelyetäisyydellä, ja Hietalahden kauppahalli on aivan nurkan takana.
Alueella on lisäksi erinomainen pyöräverkosto, useita hotelleja, liikuntapalveluita ja kulttuurikohteita. Hernesaaren ja Kaivopuiston merelliset maisemat ovat lähellä.
Palvelut
Merikortteli tarjoaa:
neuvotteluhuoneita ja projektityötiloja joustavilla sopimuksilla
ravintoloita ja kahviloita kiinteistössä
ruokakauppa
lämmitetty parkkihalli ja pyöräparkki
tavarahissi ja modernit yhteiskäyttötilat
Vastuullisuus
Merikortteli on tuotu tähän päivään vastuullisesti:
hiilineutraali energiankäyttö (kotimainen tuulisähkö, kiertolämpö, kaukojäähdytys)
BREEAM Very Good -sertifikaatti
aurinkovoimala, digitalisoitu lämmön- ja ilmanvaihdon ohjaus, automaattinen valaistus ja vedenkulutus
materiaalivalinnat ja saneeraus historiaa kunnioittaen
sähköauton latauspisteet ja lajittelupisteet
Ota yhteyttä
Kiinnostuitko? Ota yhteyttä ja tule tutustumaan!
Toimitilavälityspalvelumme on tilanhakijalle maksuton.
Tervetuloa tutustumaan!
Merikortteli – Historiallinen ja eläväinen työympäristö Punavuoren sydämessä
Merikortteli on kuusikerroksinen, vuonna 1920 rakennettu kiinteistö, joka kattaa kokonaisen korttelin ja tarjoaa ainutlaatuisen yhdistelmän historiaa ja modernia toiminnallisuutta.
Sijainti
Keskeinen sijainti Helsingin Punavuoressa takaa erinomaiset liikenneyhteydet: raitiovaunupysäkki on aivan vieressä, bussipysäkki 130 metrin päässä, metro 1,5 km ja lähijuna 1,9 km. Autolla liikkuville on lämmitetty parkkihalli ja sisäpihan paikat (180 paikkaa). Lentokentälle on vain 22 km.
Punavuori on täynnä elämää: lähistöltä löytyy lukuisia ravintoloita, kahviloita, kivijalkaliikkeitä sekä kulttuurielämyksiä. Kaivopuisto ja Eiran ranta ovat kävelyetäisyydellä, ja Hietalahden kauppahalli on aivan nurkan takana.
Alueella on lisäksi erinomainen pyöräverkosto, useita hotelleja, liikuntapalveluita ja kulttuurikohteita. Hernesaaren ja Kaivopuiston merelliset maisemat ovat lähellä.
Palvelut
Merikortteli tarjoaa:
neuvotteluhuoneita ja projektityötiloja joustavilla sopimuksilla
ravintoloita ja kahviloita kiinteistössä
ruokakauppa
lämmitetty parkkihalli ja pyöräparkki
tavarahissi ja modernit yhteiskäyttötilat
Vastuullisuus
Merikortteli on tuotu tähän päivään vastuullisesti:
hiilineutraali energiankäyttö (kotimainen tuulisähkö, kiertolämpö, kaukojäähdytys)
BREEAM Very Good -sertifikaatti
aurinkovoimala, digitalisoitu lämmön- ja ilmanvaihdon ohjaus, automaattinen valaistus ja vedenkulutus
materiaalivalinnat ja saneeraus historiaa kunnioittaen
sähköauton latauspisteet ja lajittelupisteet
Ota yhteyttä
Kiinnostuitko? Ota yhteyttä ja tule tutustumaan!
Toimitilavälityspalvelumme on tilanhakijalle maksuton.
Vapautuu
Kysy
Kerros
1
Ota yhteyttä
Logistila Oy
Kylätie 11-13, 00320 HELSINKI
Karoliina Turppo
Näytä puhelinnumero
050 345 3258
Pyydä lisätietoa
