Vuokrataan - Raisio
Vuorelankatu 3, Kuininkoja, 20320 Raisio #10849677
Toimisto- ja logistiikkatilaa Kehätien varrella Kuninkojalla
Osoite
Vuorelankatu 3, 20320 Raisio
Muuta
Vuokrattavana logistiikkatilaa erinomaisella sijainnilla Kehätien varrella Kuninkojalla.
Tila vapautuu tammikuun lopussa 2026. Kiinteistö on rakennettu vuonna 2003, ja se on hyväkuntoinen kokonaisuus, joka soveltuu monipuolisiin logistiikka- ja toimitilatarpeisiin.
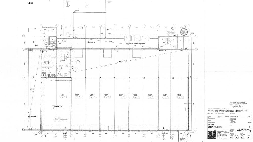
Kokonaisuuteen kuuluu noin 2000 m² kokoinen halli- tai terminaalitila. Halli on läpiajettava ja siinä on yhteensä 18 nosto-ovea, joista yhdessä on lastaustasku.
Hallin vapaa korkeus on noin 7 metriä, ja palkin alareunaan on noin 6,6 metriä. Toimiston alla hallikorkeus on noin 4 metriä.
Ensimmäisessä kerroksessa on lisäksi toimisto- tai lähettämötilaa sekä sosiaalitilat.
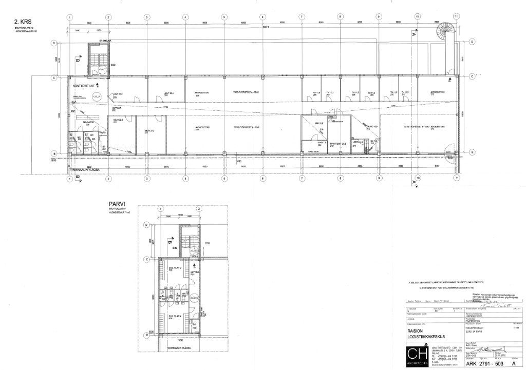
Toisen kerroksen toimistotilaa on noin 700 m². Tila on jaettavissa ja muokattavissa käyttäjän tarpeiden mukaan.
Nykyinen tila koostuu eri kokoisista huoneista, avotilasta, neuvottelutilasta sekä kahvitilasta. Rakennuksesta löytyy lisäksi kaksi erillistä pukuhuonetta, joissa molemmissa on suihkut ja wc:t.
Toimisto- ja hallitilat ovat vuokrattavissa myös erikseen, mikä tarjoaa joustavuutta erilaisiin tilatarpeisiin.
Kiinteistön tontti on kooltaan 1,8 hehtaaria, ja siinä on suuri aidattu piha-alue.
Tontilla on edelleen käyttämätöntä rakennusoikeutta, joka mahdollistaa laajentamisen tulevaisuudessa.
Alueella on hyvät kulkuyhteydet niin henkilö- kuin tavaraliikenteelle.
Tervetuloa tutustumaan, varaathan välittäjältä oman esittelyaikasi.
Voit kysyä meiltä myös muita sopivia vaihtoehtoja, kauttamme löydät juuri Teidän tarpeisiinne sopivat tilat.
Palvelumme on tilanhakijalle veloitukseton!
Tila vapautuu tammikuun lopussa 2026. Kiinteistö on rakennettu vuonna 2003, ja se on hyväkuntoinen kokonaisuus, joka soveltuu monipuolisiin logistiikka- ja toimitilatarpeisiin.
Kokonaisuuteen kuuluu noin 2000 m² kokoinen halli- tai terminaalitila. Halli on läpiajettava ja siinä on yhteensä 18 nosto-ovea, joista yhdessä on lastaustasku.
Hallin vapaa korkeus on noin 7 metriä, ja palkin alareunaan on noin 6,6 metriä. Toimiston alla hallikorkeus on noin 4 metriä.
Ensimmäisessä kerroksessa on lisäksi toimisto- tai lähettämötilaa sekä sosiaalitilat.
Toisen kerroksen toimistotilaa on noin 700 m². Tila on jaettavissa ja muokattavissa käyttäjän tarpeiden mukaan.
Nykyinen tila koostuu eri kokoisista huoneista, avotilasta, neuvottelutilasta sekä kahvitilasta. Rakennuksesta löytyy lisäksi kaksi erillistä pukuhuonetta, joissa molemmissa on suihkut ja wc:t.
Toimisto- ja hallitilat ovat vuokrattavissa myös erikseen, mikä tarjoaa joustavuutta erilaisiin tilatarpeisiin.
Kiinteistön tontti on kooltaan 1,8 hehtaaria, ja siinä on suuri aidattu piha-alue.
Tontilla on edelleen käyttämätöntä rakennusoikeutta, joka mahdollistaa laajentamisen tulevaisuudessa.
Alueella on hyvät kulkuyhteydet niin henkilö- kuin tavaraliikenteelle.
Tervetuloa tutustumaan, varaathan välittäjältä oman esittelyaikasi.
Voit kysyä meiltä myös muita sopivia vaihtoehtoja, kauttamme löydät juuri Teidän tarpeisiinne sopivat tilat.
Palvelumme on tilanhakijalle veloitukseton!
Vapautuu
Kysy
Ota yhteyttä
Tuloskiinteistöt Oy
Kauppiaskatu 11 C 23, 20100 Turku
Näytä puhelinnumero
(02) 274 3500
Ritva Nuotio
Commercial Real Estate Advisor LKV, KED
Näytä puhelinnumero
+358 50 5261 744
Karoliina Eklund
Leasing Support Specialist
Näytä puhelinnumero
+358 40 017 8999
Pyydä lisätietoa
