Vuokrataan toimistotilat, liiketilat, näyttelytilat, tuotantotilat, varastotilat, työtilat, autotalli/-hallitilat, muut tilat - Naantali
Patenttikatu 6, 21100 Naantali #10849670
Hallitilaa toimistoilla & sos.tiloilla *Iso piha-alue *Kysy lisää Stevi puh. 0400 999 900
Osoite
Patenttikatu 6, 21100 Naantali
Tilatyyppi
Toimistotilaa
71,5 m2
Liiketilaa
555,5 m2
Näyttelytilaa
555,5 m2
Tuotantotilaa
555,5 m2
Varastotilaa
555,5 m2
Työtilaa
555,5 m2
Autotalli/-hallitilaa
555,5 m2
Muuta tilaa
555,5 m2
Yhteensä
555,5 m2
Tilajako
Jaettavissa
Vapaana olevat tilat:
627m2 - Koko tila - vuokra 5016€ + av.
555,5m2 Tuotanto-/varastotila + sostilat - vuokra 4444€/kk + alv.
71,5m2 - toimistotila - vuokra 572€/kk + alv.
100m2 kylmä varasto pihalla - vuokra 160€/kk + alv.
Vuokra
4444€/kk + alv
Kiinteistö
Tuotanto- / varastotilaa Naantalin Luolalan yritysalueella.
Tila kokonaisuus on 627m2 (=425m2 hallitilaa + 190m2 toimisto-/sostiloja).
Tilat ovat heti vapaana (kerro koska tilan tarve alkaa).
Vapaana olevat tilat:
627m2 - Koko tila - vuokra 5016€ + av.
555,5m2 Tuotanto-/varastotila + sostilat - vuokra 4444€/kk + alv.
71,5m2 - toimistotila - vuokra 572€/kk + alv.
100m2 kylmä varasto pihalla - vuokra 160€/kk + alv.
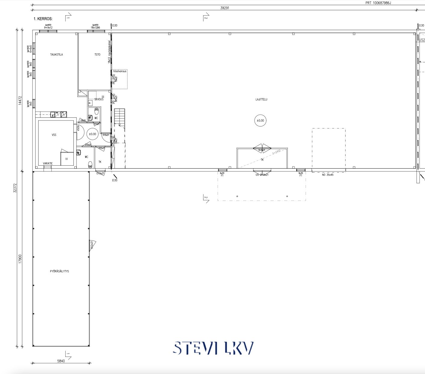
1. kerroksessa iso taukotila, jossa on keittiö. Lisäksi samassa kerroksessa on väestönsuoja ja kahdet vessat, joista toinen inva-mitoitettu.
2. kerroksessa löytyy kahdet isot sososiaalitilat, suihkut ja wc-tilat. Pukuhuoneet soveltuvat myös toimistotiloiksi. Nykyinen vuokralainen on käyttänyt tilavia pukuhuoneita toimistona.
Hallin vapaa korkeus 5,5 metriä, hallissa ison pari-oven lisäksi nosto-ovi, jonka korkeus on 4,5m ja leveys 3,5 m. Hallissa lattialämmitys ja koneellinen ilmanvaihto. Hallissa erillinen toimistohuone sekä siivouskomero. Hallissa ei ole lattiakaivoja.
Hallin edustalla on iso asfaltoitu piha.
Lämpö, sähkö ja vesi ovat kulutuksen mukaan tai arvion perusteella.
Ole yhteydessä, niin mennään porukassa katsomaan.
Toimitila terveisin,
Stefan Virtanen
Kiinteistönvälittäjä | LKV | KTM | Yrittäjä
stefan@stevilkv.com | 0400 999 900
www.stevilkv.com
Tila kokonaisuus on 627m2 (=425m2 hallitilaa + 190m2 toimisto-/sostiloja).
Tilat ovat heti vapaana (kerro koska tilan tarve alkaa).
Vapaana olevat tilat:
627m2 - Koko tila - vuokra 5016€ + av.
555,5m2 Tuotanto-/varastotila + sostilat - vuokra 4444€/kk + alv.
71,5m2 - toimistotila - vuokra 572€/kk + alv.
100m2 kylmä varasto pihalla - vuokra 160€/kk + alv.
1. kerroksessa iso taukotila, jossa on keittiö. Lisäksi samassa kerroksessa on väestönsuoja ja kahdet vessat, joista toinen inva-mitoitettu.
2. kerroksessa löytyy kahdet isot sososiaalitilat, suihkut ja wc-tilat. Pukuhuoneet soveltuvat myös toimistotiloiksi. Nykyinen vuokralainen on käyttänyt tilavia pukuhuoneita toimistona.
Hallin vapaa korkeus 5,5 metriä, hallissa ison pari-oven lisäksi nosto-ovi, jonka korkeus on 4,5m ja leveys 3,5 m. Hallissa lattialämmitys ja koneellinen ilmanvaihto. Hallissa erillinen toimistohuone sekä siivouskomero. Hallissa ei ole lattiakaivoja.
Hallin edustalla on iso asfaltoitu piha.
Lämpö, sähkö ja vesi ovat kulutuksen mukaan tai arvion perusteella.
Ole yhteydessä, niin mennään porukassa katsomaan.
Toimitila terveisin,
Stefan Virtanen
Kiinteistönvälittäjä | LKV | KTM | Yrittäjä
stefan@stevilkv.com | 0400 999 900
www.stevilkv.com
Sijainti
Naantalin Luolalan yritysalue
Ympäristö
Liiketoimintaa & teollisuutta
Pysäköinti
Pihalla
Palvelut
Alueen & keskustan palvelut
Kulkuyhteydet
Hyvät
Vuokralaisia
Kiinteistöllä & alueella myös muita toimijoita
Muuta
Kysy lisää Stevi puh. 0400 999 900 / stefan@stevilkv.com
Vapautuu
Heti
Rakennusvuosi
2003
Kerros
1 / 2
Näkyvällä paikalla
Jaettavissa
Ota yhteyttä
Stevi LKV | Kiinteistönvälitys & Vuokravälitys
Stefan Virtanen
LKV, KTM, Yrittäjä
Näytä puhelinnumero
0400 999 900
stefan@stevilkv.com
Reipasta palvelua ja hyvää konsultointia.
Soita tai laita spostia ja kerro tila tarpeesi; tämä on ilmainen palvelu tilaa etsivälle (vuokranantaja maksaa palkkion).
Toimitilojen myynti & vuokraus.
Pyydä lisätietoa
