Vuokrataan tuotantotilat - Oulu
Terminaalitie 6, Äimärautio, 90400 Oulu #10849641
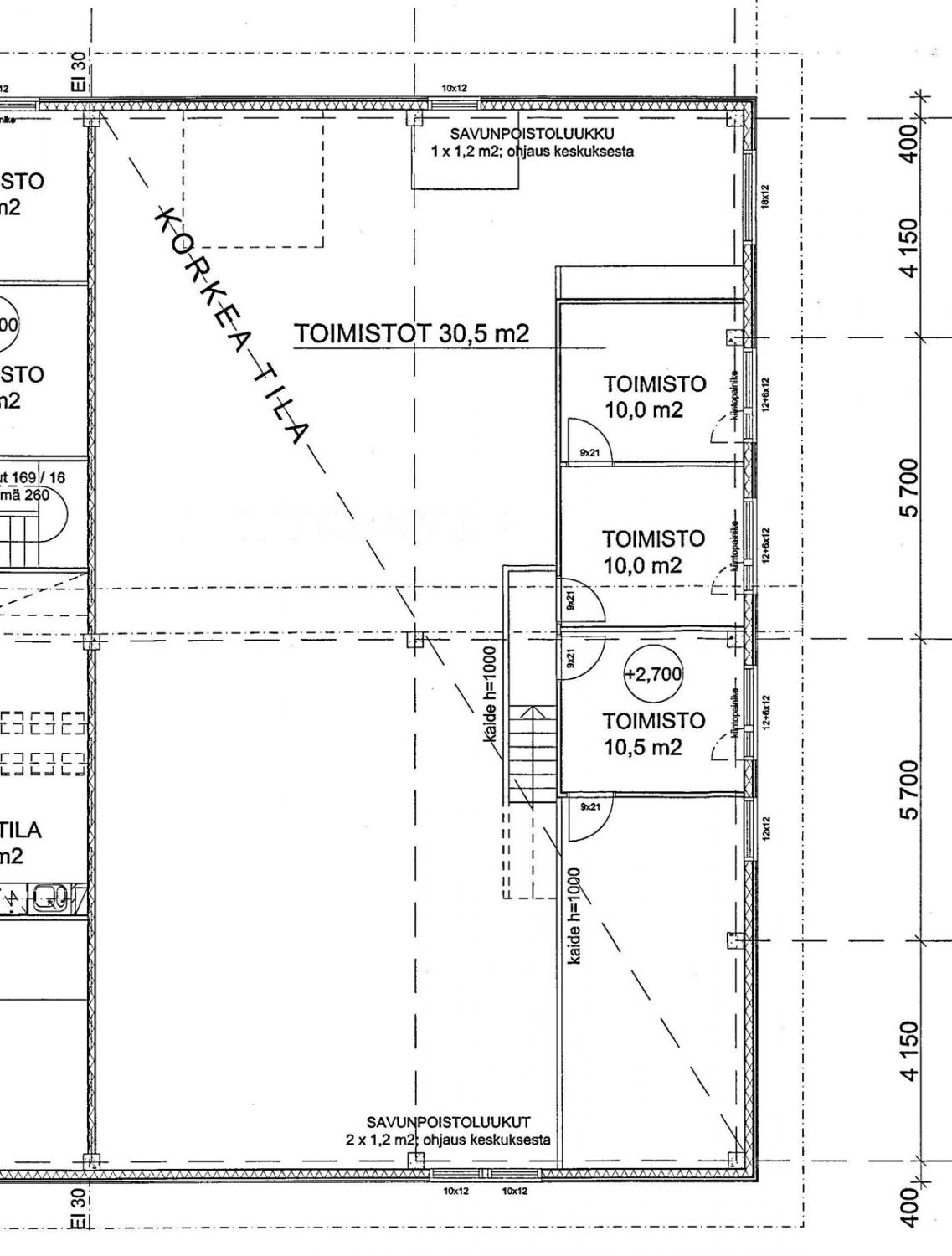
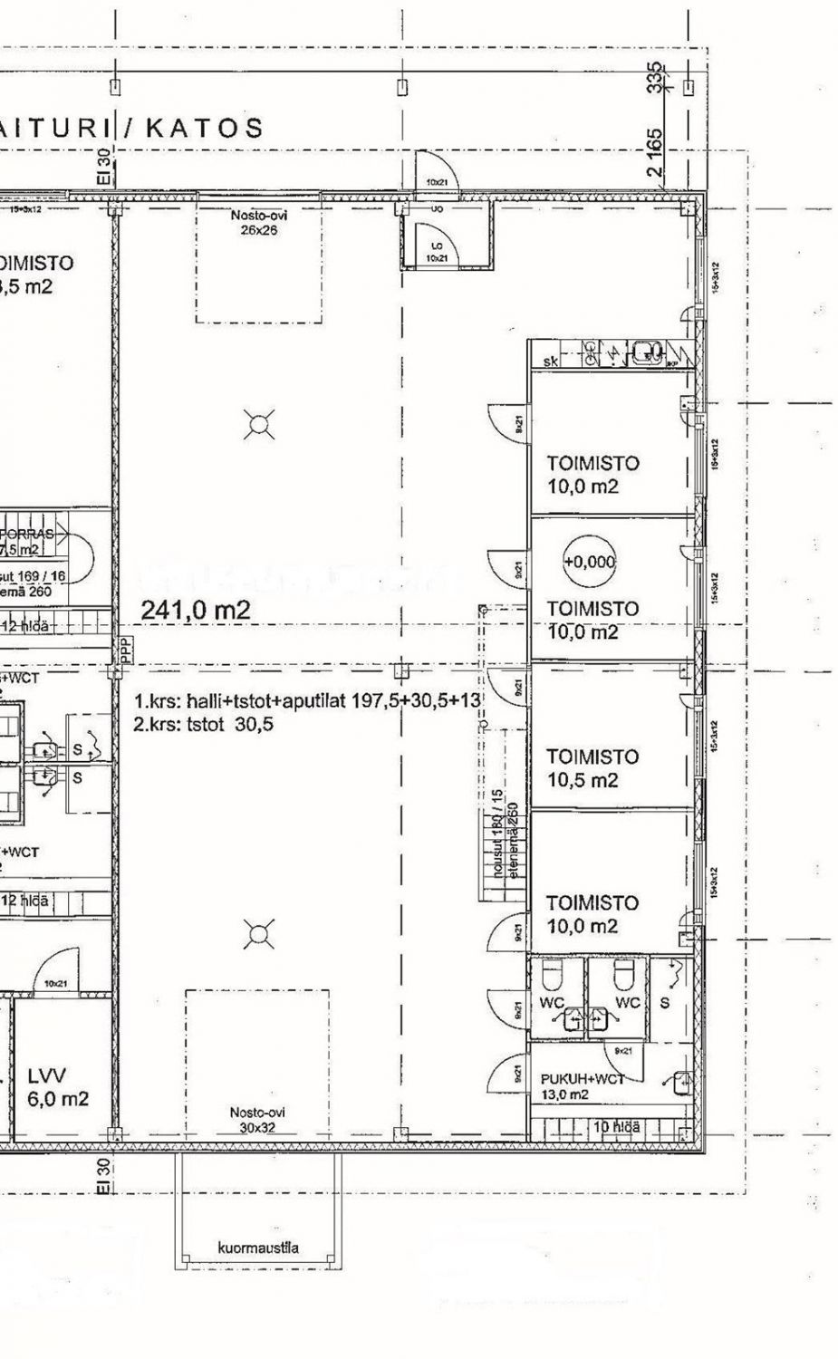
Oritkarin teollisuusalueelta monikäyttöiset tilat. Tila soveltuu erinomaisesti toimisto- ja varastokäyttöön sekä yrityksen tukikohdaksi, sillä autolla pääsee tästä liikkumaan helposti ympäri Oulua. Keskustaan alle 10min ja moottoritielle on lyhyt matka. Siistit tilat ja laadukkaat materiaalivalinnat. Toisen kerroksen tiloissa on aula, keittiö ja tilava wc toimistotilojen lisäksi.
Vuokra 2 651,00€/kk + alv 24% sisältää lämmityksen. Vesi ja käyttösähkö erilliskustannuksena.
Vuokra 2 651,00€/kk + alv 24% sisältää lämmityksen. Vesi ja käyttösähkö erilliskustannuksena.
Heti vapaa vuokrattavaksi.
Esittelyt ja lisätietoa Julia Hoikkala 050 411 8747 tai julia.hoikkala@op.fi
OP Koti Pohjoinen Oy LKV
Toimitila- ja vuokravälitys
Lekatie 6
90140 OULU
Julia Hoikkala
Myyntineuvottelija, Toimitilat, LVV, Trad.
Näytä puhelinnumero
050 411 8747
