Vuokrataan liiketilat - Helsinki
Kotisaarenkatu 3, Arabia, 00560 Helsinki #10849636
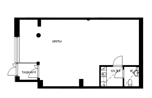
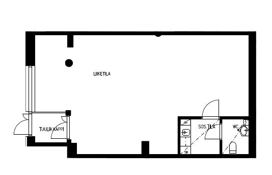
Vuokrataan asuinkiinteistön kivijalassa katutason 76.5 m2 liikehuoneisto.
Kotisaarenkatu 3 on asuinkiinteistö, jonka kivijalassa on vuokrattavaa liiketilaa. Kohteella on keskeinen sijainti Arabiassa, josta on myös hyvät liikenneyhteydet raitiovaunulla sekä bussilla. Kauppakeskus Arabian palvelut ovat aivan vieressä.
Lisätietoja saat numerosta 020 7290 720
Kohteella ei ole lain edellyttämää energiatodistusta.Kerros: 1
Osoite
Kotisaarenkatu 3, 00560 Helsinki
Tilatyyppi
Liiketilaa
76,5 m2
Ota yhteyttä
CRE PREMISES
Puh. Näytä puhelinnumero 020 7290 710
Vantaankoskentie 14
01670 VANTAA
Pyydä lisätietoa
