Vuokrataan toimistotilat - Espoo
Bertel Jungin aukio 1-9, Leppävaara, 02600 Espoo #10849635
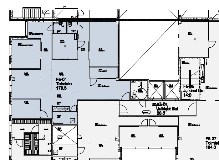
Vapautumassa 1.6.2026 siisti toimistotila erinomaisella sijainnilla Espoon Leppävaarassa. Toimistokokonaisuuteen kuuluu neuvottelu- ja toimistohuoneita, keittiö sekä wc-tilat.
Kiinteistössä on kattavat aulapalvelut, ravintola ja pysäköintihalli, jossa on myös sähköautojen latauspisteet. Sijainti on keskeinen Leppävaarassa, ja kohteeseen on helppo saapua niin julkisilla kuin omalla autollakin.
Alberga Business Parkin palveluita ovat mm. aulapalvelu, ravintola, catering, vuokrattavat neuvottelutilat, videoneuvottelut, tietoliikennepalvelut, suihku- ja pukuhuonetilat sekä pyörävarasto. Lisäksi lähialueella Leppävaarassa paljon muita palveluja, kuten kuntosaleja, kauppoja ja muita ravintoloita.
Lisätietoja 020 7290 710. Lisää kohteita www.premises.fi
Kohteella ei ole lain edellyttämää energiatodistusta tai energialuokka ei tiedossa.Kerros: 5
CRE PREMISES
Puh. Näytä puhelinnumero 020 7290 710
Vantaankoskentie 14
01670 VANTAA
