Vuokrataan toimistotilat - Lahti
Puustellintie 2, 15150 Lahti #10849633
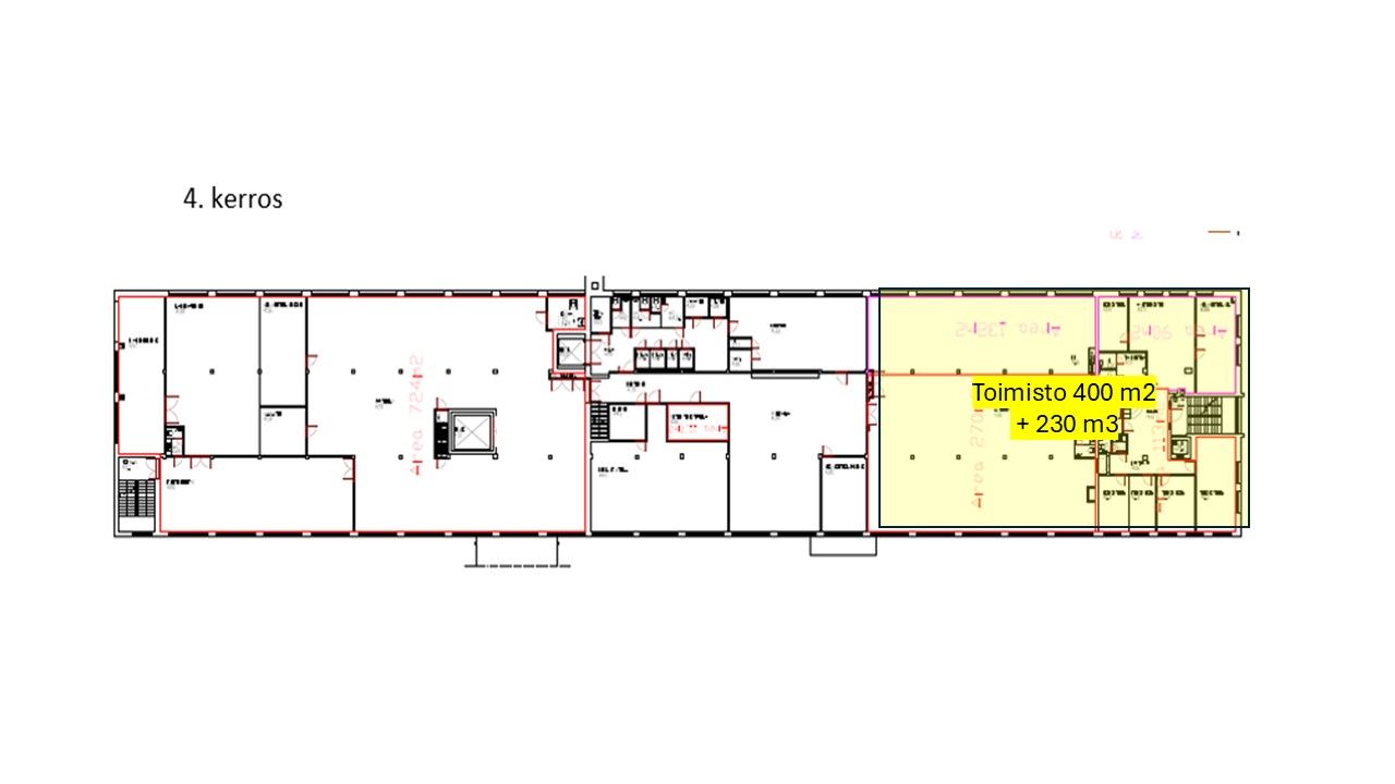
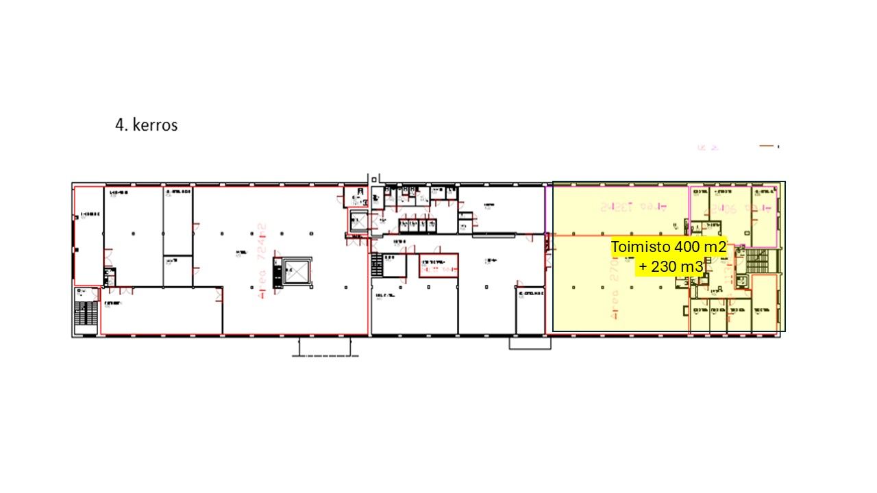
Teollisuus kiinteistön 4 kerroksessa on vapaana erittäin siisti jäähdytetty toimistotila, joka jakautuu kahteen osaan. Etuosassa sisäänkäynnin ytheydessä on toimistotila, jossa on on 7 tyohunetta ja neuvottelutila. Tämän tilan takana on avotomisto, joka on noin 400 m2. Tila on jäähdytetty. Tilassa o on wc tilat ja keittiö. Tilaan pääsee henkilöhissillä tai talon toisesta päästä myös tavarahissillä.
Lisätiedot ja esittelyt kohteesta 0207290710/0400891057
Lisää kohteita www.premises.fiKerros: 4
Osoite
Puustellintie 2, 15150 Lahti
Tilatyyppi
Toimistotilaa
630 m2
Ota yhteyttä
CRE PREMISES
Puh. Näytä puhelinnumero 020 7290 710
Vantaankoskentie 14
01670 VANTAA
Pyydä lisätietoa
