Vuokrataan liiketilat - Oulu
Saaristonkatu 2, Keskusta, 90100 Oulu #10849601
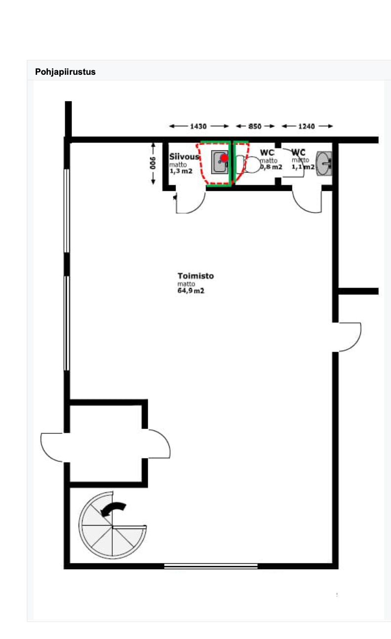
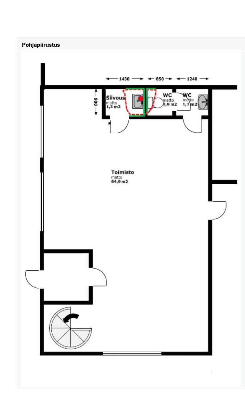
Vuokrattavana liiketila Torin läheisyydestä, Saaristonkatu 2, Oulu. Liiketila sijaitsee rakennuksen nurkassa, vieressä toimii K-market. Liiketilan koko on n. 67,5 m2 ja siinä on isot ikkunat kadulle.
Lisätietoja saat numerosta 020 7290 710. Lisää kohteita osoitteessa premises.fi.
Kohteella ei ole lain edellyttämää energiatodistusta tai energialuokka ei tiedossa.Kerros: 1
Osoite
Saaristonkatu 2, 90100 Oulu
Tilatyyppi
Liiketilaa
67,5 m2
Ota yhteyttä
CRE PREMISES
Puh. Näytä puhelinnumero 020 7290 710
Vantaankoskentie 14
01670 VANTAA
Pyydä lisätietoa
