Vuokrataan toimistotilat - Helsinki
Pursimiehenkatu 29-31, Punavuori, 00150 Helsinki #10849557
Merikortteli - Toimisto 569 m²
Osoite
Pursimiehenkatu 29-31, 00150 Helsinki
Tilatyyppi
Toimistotilaa
569 m2
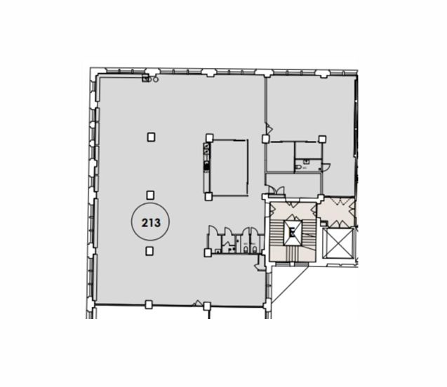
Pohjapiirros
Kiinteistö
Vuokrattavana 569 m²:n toimistotila toisessa kerroksessa, joka tarjoaa tilaa 10–50 hengen tiimille. Tila räätälöidään asiakkaan tarpeiden mukaiseksi. Poikkeuksellisen suuri huonekorkeus ja runsaat ikkunat tekevät tilasta valoisan. Näkymät avautuvat kauniisti puistoon, mikä tuo työpäiviin valoa ja viihtyisyyttä.
Pohjaratkaisu on yhdistelmä avotilaa ja huoneita, mikä ratkaisee monenlaiset työskentelytarpeet.
Merikortteli on legendaarinen kohde, jossa yhdistyvät urbaani fiilis ja inspiroiva ympäristö – täydellinen paikka yritykselle, joka arvostaa luovuutta ja edustavuutta.
Merikortteli – Historiallinen ja eläväinen työympäristö Punavuoren sydämessä
Merikortteli on kuusikerroksinen, vuonna 1920 rakennettu kiinteistö, joka kattaa kokonaisen korttelin ja tarjoaa ainutlaatuisen yhdistelmän historiaa ja modernia toiminnallisuutta.
Sijainti
Keskeinen sijainti Helsingin Punavuoressa takaa erinomaiset liikenneyhteydet: raitiovaunupysäkki on aivan vieressä, bussipysäkki 130 metrin päässä, metro 1,5 km ja lähijuna 1,9 km. Autolla liikkuville on lämmitetty parkkihalli ja sisäpihan paikat (180 paikkaa). Lentokentälle on vain 22 km.
Punavuori on täynnä elämää: lähistöltä löytyy lukuisia ravintoloita, kahviloita, kivijalkaliikkeitä sekä kulttuurielämyksiä. Kaivopuisto ja Eiran ranta ovat kävelyetäisyydellä, ja Hietalahden kauppahalli on aivan nurkan takana.
Alueella on lisäksi erinomainen pyöräverkosto, useita hotelleja, liikuntapalveluita ja kulttuurikohteita. Hernesaaren ja Kaivopuiston merelliset maisemat ovat lähellä.
Palvelut
Merikortteli tarjoaa:
neuvotteluhuoneita ja projektityötiloja joustavilla sopimuksilla
ravintoloita ja kahviloita kiinteistössä
ruokakauppa
lämmitetty parkkihalli ja pyöräparkki
tavarahissi ja modernit yhteiskäyttötilat
Vastuullisuus
Merikortteli on tuotu tähän päivään vastuullisesti:
hiilineutraali energiankäyttö (kotimainen tuulisähkö, kiertolämpö, kaukojäähdytys)
BREEAM Very Good -sertifikaatti
aurinkovoimala, digitalisoitu lämmön- ja ilmanvaihdon ohjaus, automaattinen valaistus ja vedenkulutus
materiaalivalinnat ja saneeraus historiaa kunnioittaen
sähköauton latauspisteet ja lajittelupisteet
Ota yhteyttä
Kiinnostuitko? Ota yhteyttä ja tule tutustumaan!
Toimitilavälityspalvelumme on tilanhakijalle maksuton.
Pohjaratkaisu on yhdistelmä avotilaa ja huoneita, mikä ratkaisee monenlaiset työskentelytarpeet.
Merikortteli on legendaarinen kohde, jossa yhdistyvät urbaani fiilis ja inspiroiva ympäristö – täydellinen paikka yritykselle, joka arvostaa luovuutta ja edustavuutta.
Merikortteli – Historiallinen ja eläväinen työympäristö Punavuoren sydämessä
Merikortteli on kuusikerroksinen, vuonna 1920 rakennettu kiinteistö, joka kattaa kokonaisen korttelin ja tarjoaa ainutlaatuisen yhdistelmän historiaa ja modernia toiminnallisuutta.
Sijainti
Keskeinen sijainti Helsingin Punavuoressa takaa erinomaiset liikenneyhteydet: raitiovaunupysäkki on aivan vieressä, bussipysäkki 130 metrin päässä, metro 1,5 km ja lähijuna 1,9 km. Autolla liikkuville on lämmitetty parkkihalli ja sisäpihan paikat (180 paikkaa). Lentokentälle on vain 22 km.
Punavuori on täynnä elämää: lähistöltä löytyy lukuisia ravintoloita, kahviloita, kivijalkaliikkeitä sekä kulttuurielämyksiä. Kaivopuisto ja Eiran ranta ovat kävelyetäisyydellä, ja Hietalahden kauppahalli on aivan nurkan takana.
Alueella on lisäksi erinomainen pyöräverkosto, useita hotelleja, liikuntapalveluita ja kulttuurikohteita. Hernesaaren ja Kaivopuiston merelliset maisemat ovat lähellä.
Palvelut
Merikortteli tarjoaa:
neuvotteluhuoneita ja projektityötiloja joustavilla sopimuksilla
ravintoloita ja kahviloita kiinteistössä
ruokakauppa
lämmitetty parkkihalli ja pyöräparkki
tavarahissi ja modernit yhteiskäyttötilat
Vastuullisuus
Merikortteli on tuotu tähän päivään vastuullisesti:
hiilineutraali energiankäyttö (kotimainen tuulisähkö, kiertolämpö, kaukojäähdytys)
BREEAM Very Good -sertifikaatti
aurinkovoimala, digitalisoitu lämmön- ja ilmanvaihdon ohjaus, automaattinen valaistus ja vedenkulutus
materiaalivalinnat ja saneeraus historiaa kunnioittaen
sähköauton latauspisteet ja lajittelupisteet
Ota yhteyttä
Kiinnostuitko? Ota yhteyttä ja tule tutustumaan!
Toimitilavälityspalvelumme on tilanhakijalle maksuton.
Vapautuu
Kysy
Kerros
2
Ota yhteyttä
Logistila Oy
Kylätie 11-13, 00320 HELSINKI
Karoliina Turppo
Näytä puhelinnumero
050 345 3258
Pyydä lisätietoa
