Vuokrataan toimistotilat, liiketilat - Raisio
Kellarimäenkatu 1, Kerttula, 21200 Raisio #10849551
Liike/toimistotilaa Raisiossa
Osoite
Kellarimäenkatu 1, 21200 Raisio
Tilatyyppi
Toimistotilaa
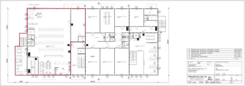
430 m2
Liiketilaa
430 m2
Yhteensä
430 m2
Pysäköinti
pihalla
Muuta
Vuokrattavana heti vapaa valoisa liike- tai toimistotila Raision Kellarimäentiellä, osoitteessa Kellarimäentie 1.
Tilassa on avoin pohjaratkaisu sekä kaksi erillistä huonetta, joista toisesta on käynti tilan yhteydessä olevalle ulkoterassille.
Tila soveltuu hyvin myös kahvilatoimintaan. Terassi on vuokralaisen käytössä, ja se tarjoaa miellyttävää lisätilaa esimerkiksi asiakaspalveluun tai kesäkauden käyttöön.
Erityisesti kahvilakäytössä terassi tuo viihtyvyyttä ja mahdollisuuden laajentaa asiakastilaa ulos.
Kiinteistöön on tulossa hissi vuoden 2026 aikana, mikä parantaa esteettömyyttä tulevaisuudessa. Alueella on hyvät kulkuyhteydet sekä runsaasti pysäköintitilaa asiakkaille ja henkilökunnalle.
Tilassa on runsaasti luonnonvaloa, mikä luo miellyttävän ympäristön työskentelylle tai asiakastoiminnalle.
Tervetuloa tutustumaan, varaathan välittäjältä oman esittelyaikasi.
Voit kysyä meiltä myös muita sopivia vaihtoehtoja, kauttamme löydät juuri Teidän tarpeisiinne sopivat tilat.
Palvelumme on tilanhakijalle veloitukseton!
Tilassa on avoin pohjaratkaisu sekä kaksi erillistä huonetta, joista toisesta on käynti tilan yhteydessä olevalle ulkoterassille.
Tila soveltuu hyvin myös kahvilatoimintaan. Terassi on vuokralaisen käytössä, ja se tarjoaa miellyttävää lisätilaa esimerkiksi asiakaspalveluun tai kesäkauden käyttöön.
Erityisesti kahvilakäytössä terassi tuo viihtyvyyttä ja mahdollisuuden laajentaa asiakastilaa ulos.
Kiinteistöön on tulossa hissi vuoden 2026 aikana, mikä parantaa esteettömyyttä tulevaisuudessa. Alueella on hyvät kulkuyhteydet sekä runsaasti pysäköintitilaa asiakkaille ja henkilökunnalle.
Tilassa on runsaasti luonnonvaloa, mikä luo miellyttävän ympäristön työskentelylle tai asiakastoiminnalle.
Tervetuloa tutustumaan, varaathan välittäjältä oman esittelyaikasi.
Voit kysyä meiltä myös muita sopivia vaihtoehtoja, kauttamme löydät juuri Teidän tarpeisiinne sopivat tilat.
Palvelumme on tilanhakijalle veloitukseton!
Vapautuu
Kysy
Ota yhteyttä
Tuloskiinteistöt Oy
Kauppiaskatu 11 C 23, 20100 Turku
Näytä puhelinnumero
(02) 274 3500
Ritva Nuotio
Commercial Real Estate Advisor LKV, KED
Näytä puhelinnumero
+358 50 5261 744
Karoliina Eklund
Leasing Support Specialist
Näytä puhelinnumero
+358 40 017 8999
Pyydä lisätietoa
