Vuokrataan toimistotilat - Tampere
Finlaysoninkuja 22, Finlaysonin Alue, 33210 Tampere #10849541
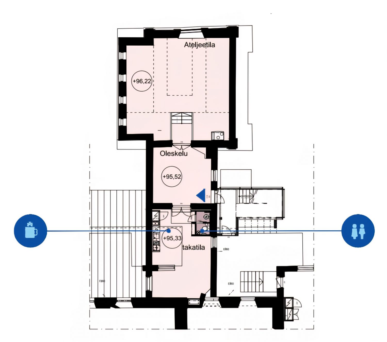
Finlaysonin alueella on vapautumassa näyttävä ja persoonallinen tila korkealla huonekorkeudella. Tässä näkemisen arvoisessa tilassa on lankkulattiat sekä oma sisäänkäynti. Se soveltuu erinomaisesti toimistoksi tai vaikkapa ateljeetilaksi. Tervetuloa ihastumaan!
Historiallinen Finlaysonin alue tunnetaan punatiilisistä ja valkoiseksi rapatuista rakennuksistaan. Se on ollut tärkeä osa Tampereen keskustaa jo yli sadan vuoden ajan ja alueella toimiikin nykypäivänä yli 100 menestyvää yritystä. Alueella on yrityksille tärkeitä palveluita, kuten kokoustiloja, catering-palveluita sekä ravintoloita ja kahviloita. Lisäksi sieltä löytyy pysäköintihalli ja pyöräparkit.
Otathan yhteyttä niin jutellaan lisää ja sovitaan näytöstä.
Me Croisettella autamme teitä löytämään teille parhaat tilat! Olemme puolueettomia asiantuntijoita ja tunnemme toimitilamarkkinat, talot sekä tilat vankalla kokemuksella.
Tehtävämme on tehdä toimitilahaustanne onnistunut ja helppo. Palvelumme on tilanhakijalle maksutonta.
Croisette Real Estate Partner
Erottajankatu 5 A 6, 00130 Helsinki
Näytä puhelinnumero
+358 400 585 857
Jenni Lampinen
Näytä puhelinnumero
+358405287396
