Vuokrataan liiketilat - Helsinki
Hämeentie 19, Sörnäinen, 00500 Helsinki #10849454
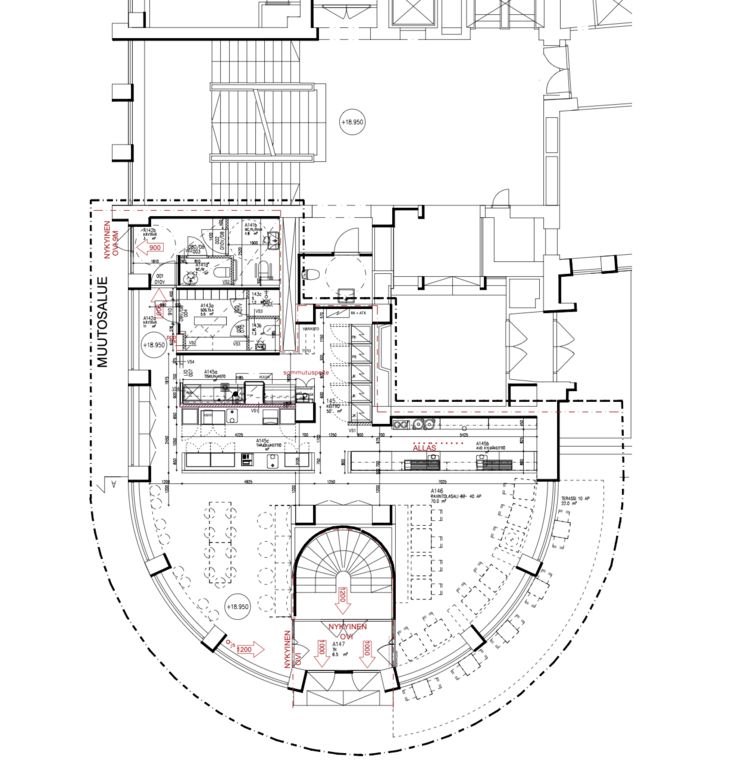
Ravintolatilaa Helsingin Sörnäisissä.
Tämä 175 m² ravintolatila sijaitsee näkyvällä paikalla kiinteistön katutasossa. Tila on mahdollista yhdistää -1. kerroksessa sijaitsevan 365 m² ravintolatilan kanssa, jolloin kokonaispinta-ala on 540 m².
Hämeentie 19 on toimisto- ja liikekiinteistö, joka sijaitsee helposti saavutettavalla paikalla Hämeentien varrella. Talo on täysin saneerattu, sen tilat ovat edustavia ja se on hinnaltaan sekä sijainniltaan erittäin kilpailukykyinen vaihtoehto. Kaikki tilat ovat varustettu jäähdytetyllä ilmanvaihdolla ja vartioinnilla. Kiinteistö tarjoaa myös monipuoliset palvelut yrityksen liiketoiminnan tueksi.
Kysy lisää numerosta 044 723 4700 tai info@bref.fi. Palvelumme on tilanhakijoille ilmainen.
Hissi
Bureau Real Estate Finland Oy
Lars Sonckin kaari 16, 02600 Espoo
Näytä puhelinnumero
0447234700
Bureau Real Estate Finland Oy
https://www.bref.fi