Vuokrataan liiketilat - Helsinki
Itämerenkatu 21, Ruoholahti, 00180 Helsinki #10849452
Liiketilaa erinomaisella sijainnilla Helsingin Ruoholahdessa.
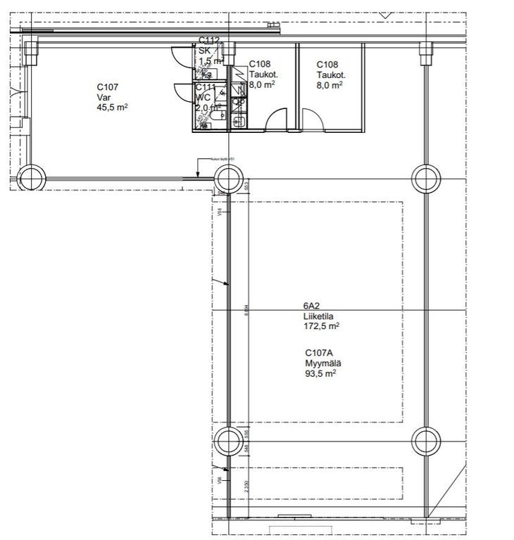
Vuokrattavana 173 m² liiketila kauppakeskuksen 1. kerroksesta. Avotilan lisäksi liiketilaan kuuluu oma keittiö, wc-tilat ja toimistohuone. Varastoalueelta on suora yhteys lastauslaiturille. Ei sovellu ravintolatoimintaan.
Itämerenkatu 21 eli Ruoholahden kauppakeskus kuuluu Ruohiksen korttelikeskukseen. Sillä on erinomainen sijainti Länsiväylän välittömässä läheisyydessä. Länsiväylältä on suora ramppi kauppakeskuksen parkkihalliin. Kauppakeskus tarjoaa monipuoliset päivittäispalvelut sekä hyvät lounasravintolavaihtoehdot. Julkisen liikenteen yhteydet ovat erinomaiset, Ruoholahden metroasemalle on lyhyt kävelymatka.
Kysy lisää numerosta 044 723 4700 tai info@bref.fi. Palvelumme on tilanhakijoille ilmainen.
Bureau Real Estate Finland Oy
Lars Sonckin kaari 16, 02600 Espoo
Näytä puhelinnumero
0447234700
Bureau Real Estate Finland Oy
https://www.bref.fi